Выбирайте загородные участки и дома с помощью портала kypitedom.com
/

Дом без отделки 344 м², лот 5410

Продается Дом без отделки, 344 м², лот 5410 уникальное предложение в Подмосковье. С фотографиями, планировками и ценой.
Запишитесь на просмотр.
101,400,000 Р
1,072,000 €
1,252,000 $
Р $
Лот5410
Площадь дома344 м²
Площадь участка 15 соток
Этажность2
Спальни3
Удаленность от МКАД22 км
ШоссеМинское
Тип домакоттедж
Отделкабез отделки

Описание

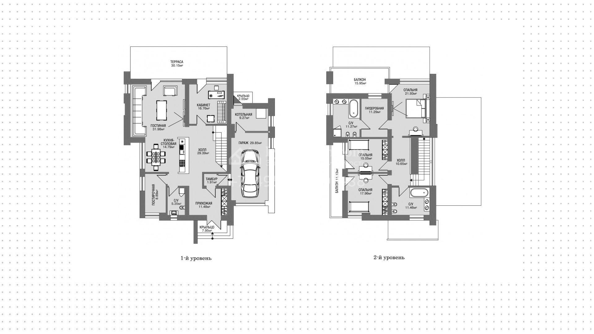
Семейный загородный дом с 3-мя спальнями и встроенным гаражом расположен на открытом участке 15 соток в центральной части поселка. В доме предусмотрен встроенный гараж, кухня, гостиная и кабинет с выходами на террасу. На 2-м этаже две спальни, санузел и спальня хозяев с гардеробной и санузлом. Дом 344 м² продается без отделки и облицовки фасада.
Скачайте PDF
Презентация дома в посёлке «Крёкшино»
7.1MB
в pdf
Скачайте полную презентацию лота в один клик
*Время загрузки файла - 4 секунды
Ставка от
9.3%
Первый взнос от
15%
Ежемесячный платёж от
80 463 ₽
Банки
Стоимость недвижимости
Первоначальный взнос
Срок, лет
Просторные резиденции с парком во французском стиле, фитнес-клубом и частным детским садом ...
Читать статью
Резиденции с парком и фонтаном в окружении леса ...
Читать статью
Готовые резиденции с прудом, детскими площадками и зелёным ландшафтом в окружении парков ...
Читать статью
Читать блог
Похожие объекты
Посмотрите соседние посёлки
Чигасово-2
коттедж
Удаленность от МКАД:41 КМ
Шоссе:Рублево-Успенское
Объектов:0
Чистые пруды
от 48,000,000 Р 521,000 € 607,000 $ за объект
таунхаус
коттедж
Удаленность от МКАД:20 КМ
Шоссе:Минское
Объектов:1
Жуковка-2
от 142,500,000 Р 1,527,000 € 1,770,000 $ за объект
коттедж
Удаленность от МКАД:9 КМ
Шоссе:Рублево-Успенское
Объектов:2