Выбирайте загородные участки и дома с помощью портала kypitedom.com
/

Дом «Комфорт» 303 м², лот 9205

Продается Дом «Комфорт», 303 м², лот 9205 уникальное предложение в Подмосковье. С фотографиями, планировками и ценой.
Запишитесь на просмотр.
100,000,000 Р
1,105,000 €
1,285,000 $
Р $
Лот9205
Площадь дома303 м²
Площадь участка 8 соток
Этажность2
Спальни5
Удаленность от МКАД20 км
ШоссеРублево-Успенское
Тип домакоттедж
Отделка«под ключ»

Описание

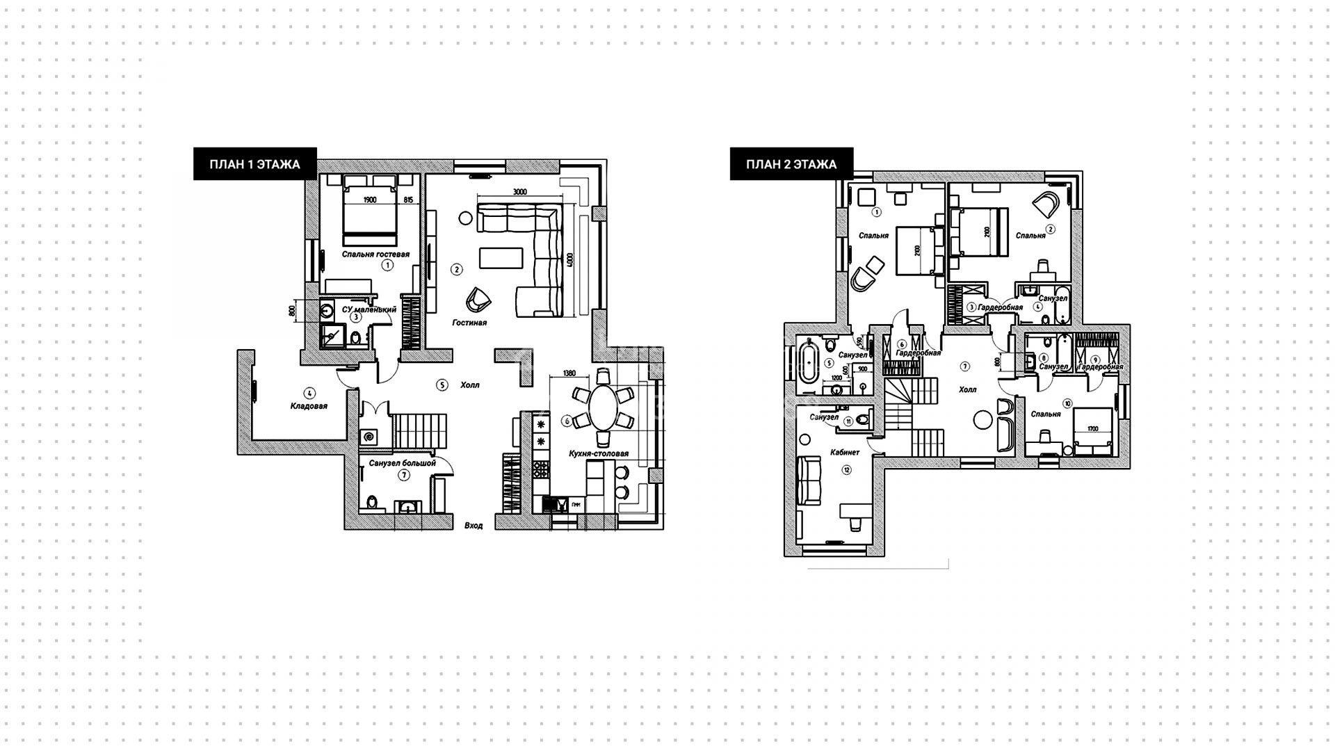
Дом по проекту «Комфорт» с белым фасадом в современном стиле расположен на угловом участке 8 соток у въезда в поселок. Дом площадью 303 м² облицован штукатуркой, натуральным деревом темного оттенка и искусственным серым камнем. Интерьер «под ключ» в современном стиле выполнили в серо-бело-бежевых оттенках — к нему легко подобрать акцентные цвета и мебель в любом стиле. В доме установлена кухня со встроенной техникой, оборудованы санузлы, развешаны светильники и бра. На двух этажах спланировано 5 спален, или 4 спальни и кабинет. На участке машину можно припарковать под навесом, рядом — постелить газон и поставить шезлонги в тени корабельных сосен.
Скачайте PDF
Презентация дома в посёлке «Никологорский квартал»

в pdf
Скачайте полную презентацию лота в один клик
*Время загрузки файла - 4 секунды
Ставка от
9.3%
Первый взнос от
15%
Ежемесячный платёж от
80 463 ₽
Банки
Стоимость недвижимости
Первоначальный взнос
Срок, лет
Просторные резиденции с парком во французском стиле, фитнес-клубом и частным детским садом ...
Читать статью
Резиденции с парком и фонтаном в окружении леса ...
Читать статью
Готовые резиденции с прудом, детскими площадками и зелёным ландшафтом в окружении парков ...
Читать статью
Читать блог
Похожие объекты
Посмотрите соседние посёлки
Новораково
коттедж
Удаленность от МКАД:59 КМ
Шоссе:Новорижское
Объектов:0
Зайцево Парк
от 95,000,000 Р 1,038,000 € 1,209,000 $ за объект
коттедж
Удаленность от МКАД:19 КМ
Шоссе:Минское
Объектов:8
Голицыно
от 21,000,000 Р 232,000 € 270,000 $ за объект
коттедж
Удаленность от МКАД:30 КМ
Шоссе:Можайское
Объектов:2