Выбирайте загородные участки и дома с помощью портала kypitedom.com
/

Дом в современном стиле 541 м², лот 13477

Продается Дом в современном стиле, 541 м², лот 13477 уникальное предложение в Подмосковье. С фотографиями, планировками и ценой.
Запишитесь на просмотр.
230,000,000 Р
2,539,000 €
3,001,000 $
Р $
Лот13477
Площадь дома541 м²
Площадь участка 20 соток
Этажность3
Спальни4
Удаленность от МКАД31 км
ШоссеНоворижское
Тип домакоттедж
Отделка«под ключ»

Описание

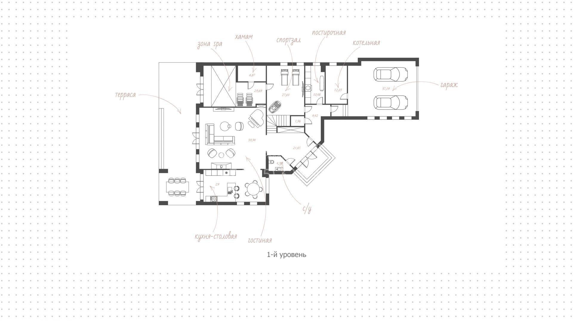
Трехэтажный коттедж площадью 541 м² расположен на полевом участке 20 соток. Современный фасад здания с большой площадью остекления демонстрирует гармоничное сочетание темного кирпича и светлого камня. Выступающая кровля, колонны, массивные карнизы и террасы подчёркивают тщательно продуманный архитектурный стиль. Дом оснащен подогревом полов, приточно-вытяжной вентиляцией и системой кондиционирования Daikin. Интерьер создан по эксклюзивному проекту бюро «ТопДом». В отделке применены натуральные и высококачественные материалы — паркет, итальянский керамогранит, мрамор Thassos и Pietra Grey. Стены декорированы гипсовыми панно, мраморным слэбом «Тигровый глаз», тканевыми и зеркальными панелями с металлическими деталями. Кухня оборудована гарнитуром из кварцевого агломерата Patagonia и встраиваемой техникой Kuppersbusch. Планировка включает гостиную со вторым светом, камином и выходом на террасу с зоной барбекю, кухню-столовую, 4 спальни, кабинет, спортзал, библиотеку, а также комнату отдыха с хаммамом. На ухоженном участке засеян газон, проложены дорожки и высажены хвойные деревья. Перед домом организована просторная въездная группа для дополнительного комфорта.
Скачайте PDF
Презентация дома в посёлке «Новорижский»
9.6MB
в pdf
Скачайте полную презентацию лота в один клик
*Время загрузки файла - 4 секунды
Ставка от
9.3%
Первый взнос от
15%
Ежемесячный платёж от
80 463 ₽
Банки
Стоимость недвижимости
Первоначальный взнос
Срок, лет
Просторные резиденции с парком во французском стиле, фитнес-клубом и частным детским садом ...
Читать статью
Резиденции с парком и фонтаном в окружении леса ...
Читать статью
Готовые резиденции с прудом, детскими площадками и зелёным ландшафтом в окружении парков ...
Читать статью
Читать блог
Похожие объекты
Посмотрите соседние посёлки
Лесные зори
от 26,000,000 Р 292,000 € 342,000 $ за объект
коттедж
Удаленность от МКАД:26 КМ
Шоссе:Новорижское
Объектов:31
Новораково
коттедж
Удаленность от МКАД:59 КМ
Шоссе:Новорижское
Объектов:0
Зайцево Парк
от 95,000,000 Р 1,038,000 € 1,209,000 $ за объект
коттедж
Удаленность от МКАД:19 КМ
Шоссе:Минское
Объектов:8