Выбирайте загородные участки и дома с помощью портала kypitedom.com
/

Дом в стиле минимализм 489 м², лот 13905

Продается Дом в стиле минимализм, 489 м², лот 13905 уникальное предложение в Подмосковье. С фотографиями, планировками и ценой.
Запишитесь на просмотр.
Показать генплан
300,000,000 Р
3,194,000 €
3,701,000 $
Р $
Лот13905
Площадь дома489 м²
Площадь участка 22 сотки
Этажность1
Спальни4
Удаленность от МКАД19 км
ШоссеНоворижское
Тип домакоттедж
Отделка«под ключ»

Описание

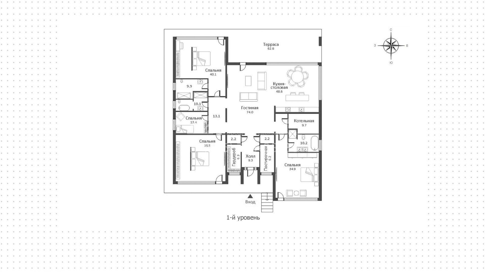
Современный загородный коттедж площадью 489 м² расположен на полевом участке 22 сотки. Фасад, выполненный в стиле минимализм, облицован панелями с фактурой дерева и гармонично вписан в ландшафт. Панорамные окна стирают грань между природным окружением и интерьерами, наполненными солнечным теплом. Внутреннее пространство выдержано в светлых тонах, дополнено ярко-красными акцентами, а также элегантными люстрами и картинами. Дом полностью укомплектован комфортной мебелью, встроенной бытовой техникой и сантехникой. Планировка включает просторную гостиную с камином, плавно перетекающую в кухню-столовую с удобным островом, 4 спальни и вместительную гардеробную. На террасе обустроена уютная зона для отдыха на свежем воздухе. Оставить автомобили можно в отдельностоящем двухместном гараже. Участок благоустроен — здесь засеян газон, высажены декоративные кустарники, брусчаткой вымощены дорожки, а уличное освещение подчёркивает авторскую архитектуру и создаёт особую атмосферу в вечернее время.
Скачайте PDF
Презентация дома в посёлке «Ренессанс Парк»
3MB
в pdf
Скачайте полную презентацию лота в один клик
*Время загрузки файла - 4 секунды
Ставка от
9.3%
Первый взнос от
15%
Ежемесячный платёж от
80 463 ₽
Банки
Стоимость недвижимости
Первоначальный взнос
Срок, лет
Просторные резиденции с парком во французском стиле, фитнес-клубом и частным детским садом ...
Читать статью
Резиденции с парком и фонтаном в окружении леса ...
Читать статью
Готовые резиденции с прудом, детскими площадками и зелёным ландшафтом в окружении парков ...
Читать статью
Читать блог
Похожие объекты
Посмотрите соседние посёлки
Голицыно
от 21,000,000 Р 222,000 € 259,000 $ за объект
коттедж
Удаленность от МКАД:30 КМ
Шоссе:Можайское
Объектов:2
Аносино Парк
от 37,000,000 Р 393,000 € 455,000 $ за объект
коттедж
Удаленность от МКАД:27 КМ
Шоссе:Новорижское
Объектов:3
Палицы
от 42,600,000 Р 452,000 € 526,000 $ за объект
коттедж
Удаленность от МКАД:28 КМ
Шоссе:Ильинское
Объектов:4