Выбирайте загородные участки и дома с помощью портала kypitedom.com
/

Дом в стиле минимализм 238 м², лот 14119

Продается Дом в стиле минимализм, 238 м², лот 14119 уникальное предложение в Подмосковье. С фотографиями, планировками и ценой.
Запишитесь на просмотр.
47,000,000 Р
511,000 €
605,000 $
Р $
Лот14119
Площадь дома238 м²
Площадь участка 7 соток
Этажность2
Спальни3
Удаленность от МКАД17 км
ШоссеРублево-Успенское
Тип домакоттедж
Отделкабез отделки

Описание

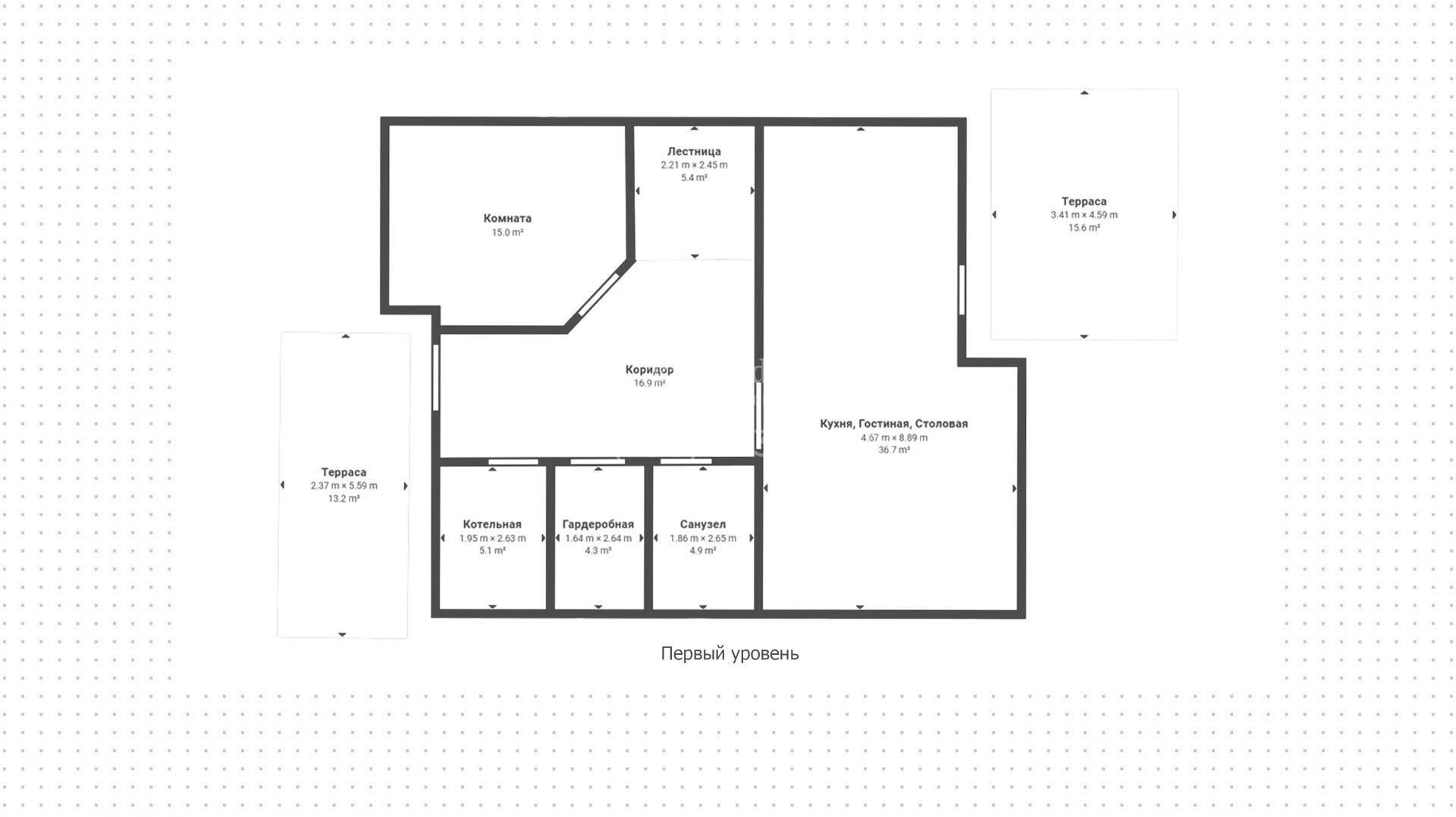
Загородный коттедж площадью 238 м² расположен на полевом участке 7 соток. Минималистичный фасад, облицованный тёмно-серым клинкерным кирпичом и дополненный лаконичными колоннами, приобретает выразительность благодаря современной вечерней подсветке. Панорамные окна наполняют дом солнечным теплом, а второй свет создаёт ощущение объёма и лёгкости. Отсутствие отделки позволяет будущим владельцам создать интерьеры, полностью отражающие их вкус и образ жизни, реализовав любой дизайн-проект. Первый уровень объединяет просторную гостиную с кухней-столовой, две террасы и комнату свободного назначения, которая может стать кабинетом, спортзалом или дополнительной спальней. На втором этаже создана уединённая зона с тремя спальнями для отдыха и восстановления сил. Территория благоустроена ровным газоном и оборудована дренажной системой, обеспечивающей идеальное состояние участка в любое время года.
Скачайте PDF
Презентация дома в посёлке «Солослово»
9.6MB
в pdf
Скачайте полную презентацию лота в один клик
*Время загрузки файла - 4 секунды
Ставка от
9.3%
Первый взнос от
15%
Ежемесячный платёж от
80 463 ₽
Банки
Стоимость недвижимости
Первоначальный взнос
Срок, лет
Просторные резиденции с парком во французском стиле, фитнес-клубом и частным детским садом ...
Читать статью
Резиденции с парком и фонтаном в окружении леса ...
Читать статью
Готовые резиденции с прудом, детскими площадками и зелёным ландшафтом в окружении парков ...
Читать статью
Читать блог
Похожие объекты
Посмотрите соседние посёлки
Лесные зори
от 26,000,000 Р 292,000 € 342,000 $ за объект
коттедж
Удаленность от МКАД:26 КМ
Шоссе:Новорижское
Объектов:31
Новораково
коттедж
Удаленность от МКАД:59 КМ
Шоссе:Новорижское
Объектов:0
Зайцево Парк
от 95,000,000 Р 1,038,000 € 1,209,000 $ за объект
коттедж
Удаленность от МКАД:19 КМ
Шоссе:Минское
Объектов:8