Выбирайте загородные участки и дома с помощью портала kypitedom.com
/

Дом в верхней части поселка 430 м², лот 5366

Продается Дом в верхней части поселка, 430 м², лот 5366 уникальное предложение в Подмосковье. С фотографиями, планировками и ценой.
Запишитесь на просмотр.
100,500,000 Р
1,110,000 €
1,312,000 $
Р $
Лот5366
Площадь дома430 м²
Площадь участка 23 сотки
Этажность2
Спальни3
Удаленность от МКАД22 км
ШоссеМинское
Тип домакоттедж
Отделкабез отделки

Описание

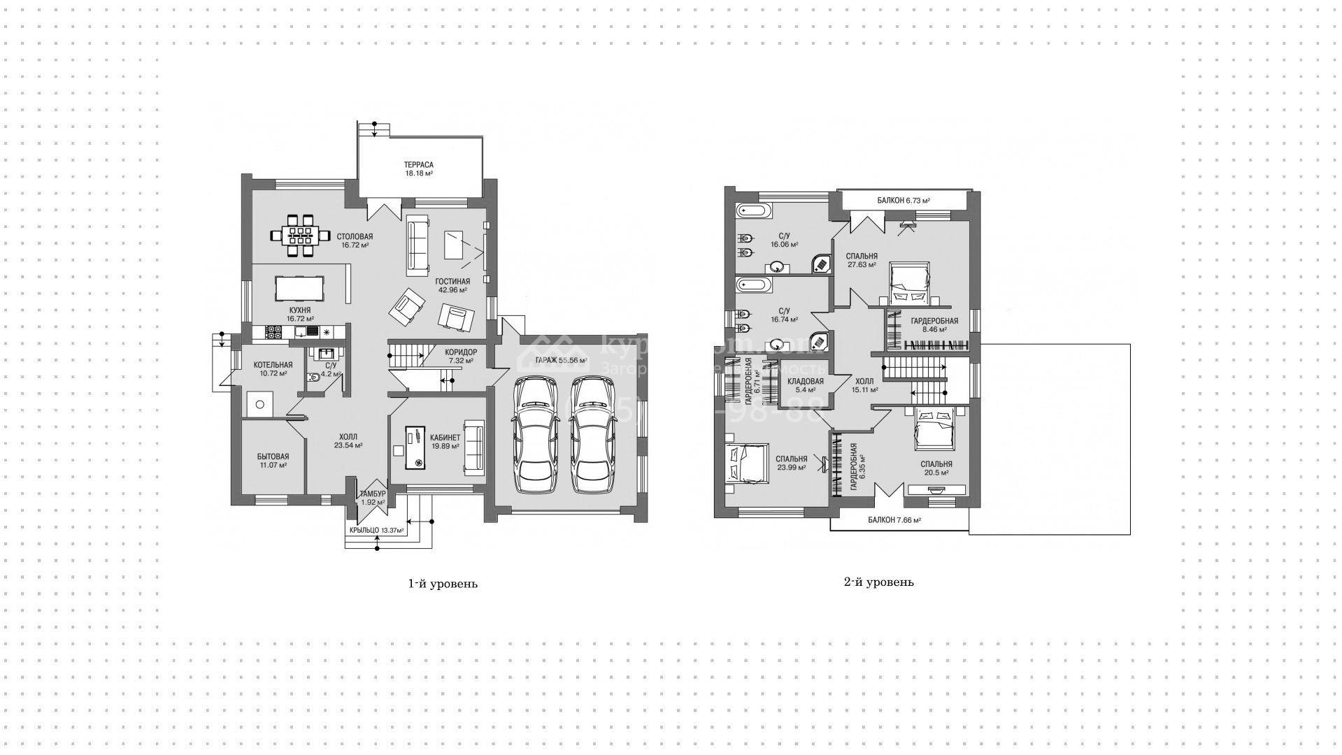
Загородный дом с 3-мя спальнями и встроенным гаражом на 2 автомобиля построен на открытом участке 23 сотки в верхней части поселка. На первом этаже семейная гостиная, кабинет и гараж. Второй этаж занимают три спальни с выходом на два балкона. Общая площадь дома 430 м².

Поэтажное описание

1-й уровень: холл, бытовая, котельная, санузел, кабинет, выход в гараж; кухня, столовая, гостиная с выходом на террасу. 2-й уровень: холл, кладовая, санузел, 2 спальни с гардеробными, балкон, спальня с санузлом, гардеробной и выходом на балкон.
Скачайте PDF
Презентация дома в посёлке «Крёкшино»
7.1MB
в pdf
Скачайте полную презентацию лота в один клик
*Время загрузки файла - 4 секунды
Ставка от
9.3%
Первый взнос от
15%
Ежемесячный платёж от
80 463 ₽
Банки
Стоимость недвижимости
Первоначальный взнос
Срок, лет
Просторные резиденции с парком во французском стиле, фитнес-клубом и частным детским садом ...
Читать статью
Резиденции с парком и фонтаном в окружении леса ...
Читать статью
Готовые резиденции с прудом, детскими площадками и зелёным ландшафтом в окружении парков ...
Читать статью
Читать блог
Похожие объекты
Посмотрите соседние посёлки
Лесные зори
от 26,000,000 Р 292,000 € 342,000 $ за объект
коттедж
Удаленность от МКАД:26 КМ
Шоссе:Новорижское
Объектов:31
Новораково
коттедж
Удаленность от МКАД:59 КМ
Шоссе:Новорижское
Объектов:0
Зайцево Парк
от 95,000,000 Р 1,038,000 € 1,209,000 $ за объект
коттедж
Удаленность от МКАД:19 КМ
Шоссе:Минское
Объектов:8