Выбирайте загородные участки и дома с помощью портала kypitedom.com
/

Дуплекс с 4-мя спальнями 1392 м², лот 14014

Продается Дуплекс с 4-мя спальнями, 1392 м², лот 14014 уникальное предложение в Подмосковье. С фотографиями, планировками и ценой.
Запишитесь на просмотр.
647,900,000 Р
6,850,000 €
8,000,000 $
Р $
Лот14014
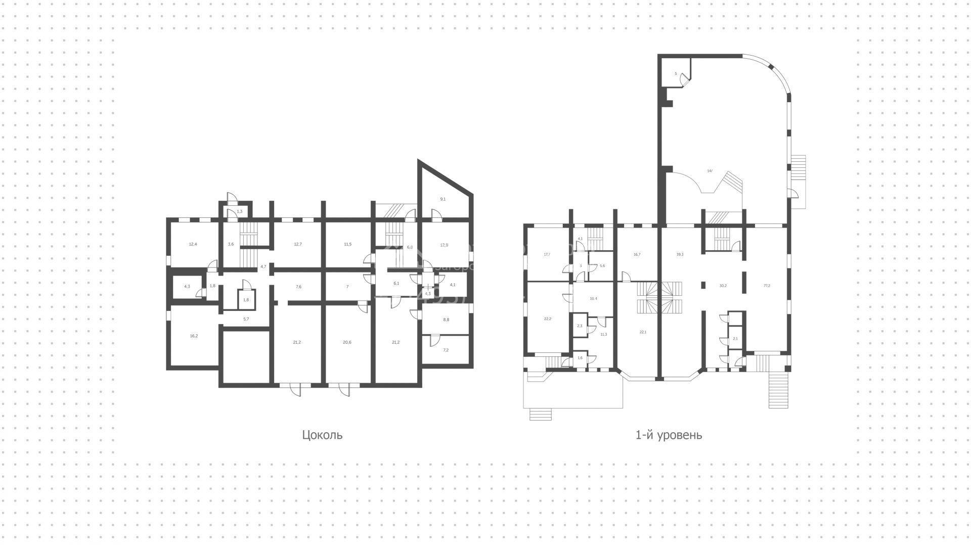
Площадь дома1392 м²
Площадь участка 14 соток
Этажность4
Спальни4
Удаленность от МКАД1 км
ШоссеСколковское
Тип домадуплекс
Отделка«под ключ»

Описание

Четырёхэтажный дуплекс площадью 1392 м² расположен на участке 14 соток рядом с лесным массивом. Архитектура выполнена в современном стиле с элементами функционализма: светлый кирпичный фасад подчёркивают строгие линии, асимметричный фронтон и выразительные эркеры. Интерьеры выдержаны в гамме бежевых, серых и кремовых оттенков, которые наполняют пространство светом и создают атмосферу уюта. Лаконичные современные формы гармонично дополнены классическими деталями — лепными карнизами, зеркальными панно, скульптурами и резным мраморным камином. Система освещения продумана до мелочей: установлены дизайнерские люстры и точечные светильники, позволяющие формировать разные сценарии. В доме предусмотрены 2 гостиные, кухня-столовая, 4 спальни, кабинет-библиотека, спортивный зал, бильярдная и просторная SPA-зона с бассейном, хаммамом и зоной отдыха. Участок благоустроен: среди хвойных и лиственных деревьев проложены прогулочные дорожки с подсветкой. На территории также расположены беседка и гараж на 5 автомобилей с отдельной квартирой для персонала.
Скачайте PDF
Презентация в посёлке «ФРМУ»

в pdf
Скачайте полную презентацию лота в один клик
*Время загрузки файла - 4 секунды
Ставка от
9.3%
Первый взнос от
15%
Ежемесячный платёж от
80 463 ₽
Банки
Стоимость недвижимости
Первоначальный взнос
Срок, лет
Просторные резиденции с парком во французском стиле, фитнес-клубом и частным детским садом ...
Читать статью
Резиденции с парком и фонтаном в окружении леса ...
Читать статью
Готовые резиденции с прудом, детскими площадками и зелёным ландшафтом в окружении парков ...
Читать статью
Читать блог
Похожие объекты
Посмотрите соседние посёлки
Чигасово-2
коттедж
Удаленность от МКАД:41 КМ
Шоссе:Рублево-Успенское
Объектов:0
Чистые пруды
от 48,000,000 Р 521,000 € 607,000 $ за объект
таунхаус
коттедж
Удаленность от МКАД:20 КМ
Шоссе:Минское
Объектов:1
Жуковка-2
от 142,500,000 Р 1,527,000 € 1,770,000 $ за объект
коттедж
Удаленность от МКАД:9 КМ
Шоссе:Рублево-Успенское
Объектов:2