Выбирайте загородные участки и дома с помощью портала kypitedom.com
/

Двухэтажная резиденция 344 м², лот 5297

Продается Двухэтажная резиденция, 344 м², лот 5297 уникальное предложение в Подмосковье. С фотографиями, планировками и ценой.
Запишитесь на просмотр.
89,100,000 Р
983,000 €
1,162,000 $
Р $
Лот5297
Площадь дома344 м²
Площадь участка 13 соток
Этажность2
Спальни3
Удаленность от МКАД22 км
ШоссеМинское
Тип домакоттедж
Отделкабез отделки

Описание

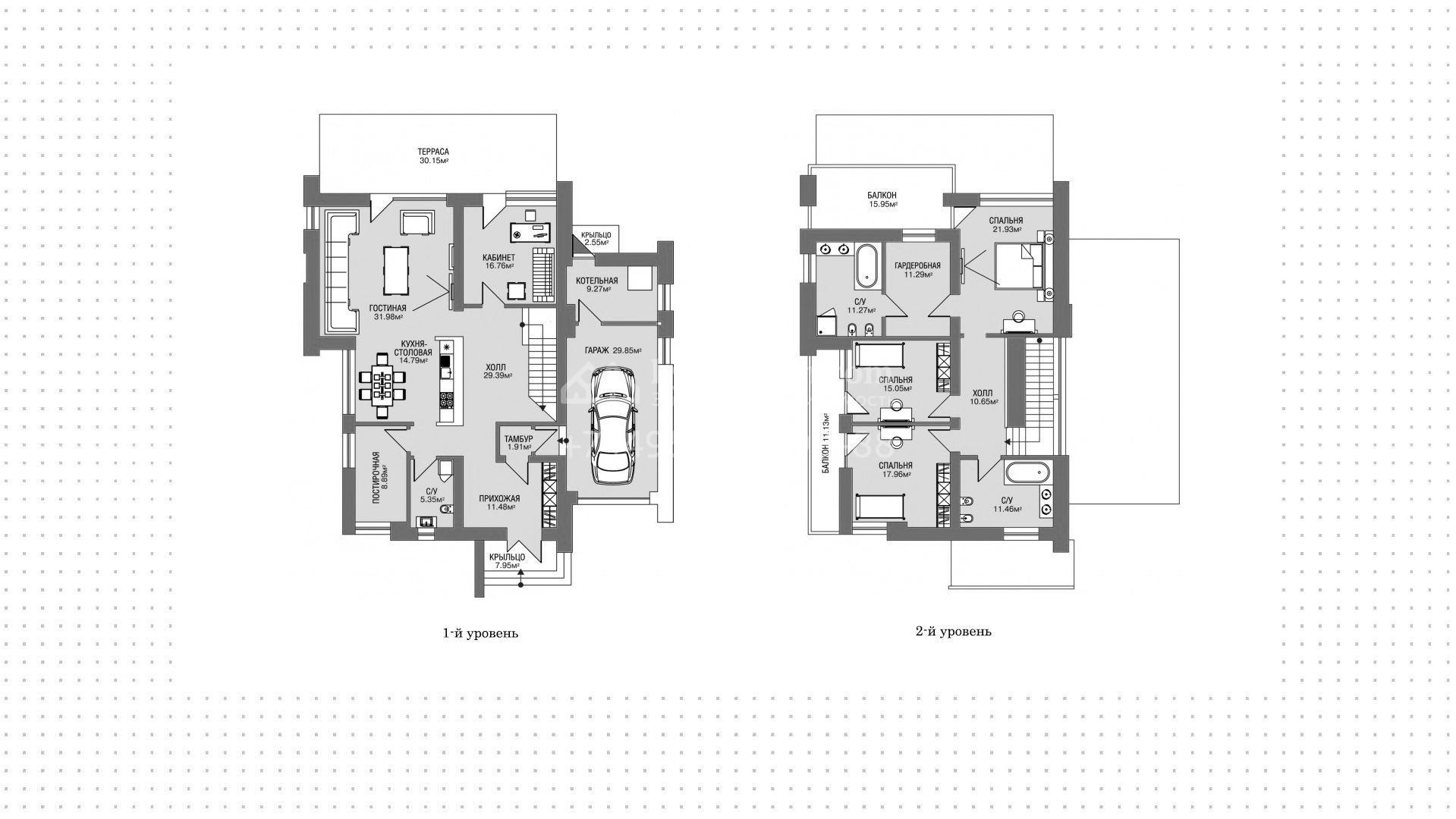
Двухэтажный коттедж без отделки и фасадной облицовки построен на полевом участке 13 соток. Первый этаж занимает встроенный гараж, кухня-остров, гостиная и кабинет с выходами на террасу. На втором этаже 3 спальни, 2 санузла и 2 балкона. Общая площадь дома 344 м².
Скачайте PDF
Презентация дома в посёлке «Крёкшино»
7.1MB
в pdf
Скачайте полную презентацию лота в один клик
*Время загрузки файла - 4 секунды
Ставка от
9.3%
Первый взнос от
15%
Ежемесячный платёж от
80 463 ₽
Банки
Стоимость недвижимости
Первоначальный взнос
Срок, лет
Просторные резиденции с парком во французском стиле, фитнес-клубом и частным детским садом ...
Читать статью
Резиденции с парком и фонтаном в окружении леса ...
Читать статью
Готовые резиденции с прудом, детскими площадками и зелёным ландшафтом в окружении парков ...
Читать статью
Читать блог
Похожие объекты
Посмотрите соседние посёлки
Лесные зори
от 26,000,000 Р 292,000 € 342,000 $ за объект
коттедж
Удаленность от МКАД:26 КМ
Шоссе:Новорижское
Объектов:31
Новораково
коттедж
Удаленность от МКАД:59 КМ
Шоссе:Новорижское
Объектов:0
Зайцево Парк
от 95,000,000 Р 1,038,000 € 1,209,000 $ за объект
коттедж
Удаленность от МКАД:19 КМ
Шоссе:Минское
Объектов:8