Выбирайте загородные участки и дома с помощью портала kypitedom.com
/

Двухэтажный дом в неоклассическом стиле 950 м², лот 5646

Продается Двухэтажный дом в неоклассическом стиле, 950 м², лот 5646 уникальное предложение в Подмосковье. С фотографиями, планировками и ценой.
Запишитесь на просмотр.
Показать генплан
738,400,000 Р
8,126,000 €
9,622,000 $
Р $
Лот5646
Площадь дома950 м²
Площадь участка 50 соток
Этажность2
Спальни3
Удаленность от МКАД9 км
ШоссеРублево-Успенское
Тип домакоттедж

Описание

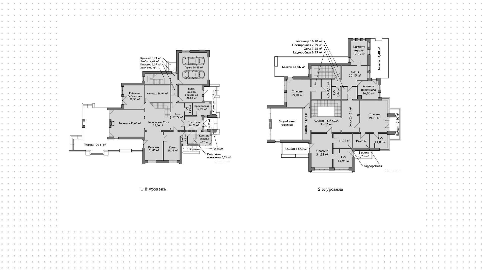
Просторный двухэтажный дом в неоклассическом стиле с чистовой отделкой. Фасад облицован плитами из натурального камня. Площадь дома 950 м², на первом этаже гараж для двух машин, столовая, кухня, гостиная с выходом на террасу 106 м², кабинет-библиотека и кинозал. На втором этаже 3 спальни с гардеробными, санузлами и выходами на балконы и комната персонала. Полевой участок площадью 50 соток.

Поэтажное описание

1-й уровень: прихожая с гардеробной, холл с санузлом, комната охраны, бойлерная, гараж на 2 машины, лестничный холл, столовая, кухня, гостиная 54 м² с выходом на террасу 106 м², кабинет-библиотека, кинозал. 2-й уровень: лестничный холл, второй свет, 3 спальни с гардеробными, санузлами и выходами на балконы, кухня, комната персонала и комната охраны с выходом на балкон.
Скачайте PDF
Презентация дома в посёлке «Жуковка 21»
8.9MB
в pdf
Скачайте полную презентацию лота в один клик
*Время загрузки файла - 4 секунды
Ставка от
9.3%
Первый взнос от
15%
Ежемесячный платёж от
80 463 ₽
Банки
Стоимость недвижимости
Первоначальный взнос
Срок, лет
Просторные резиденции с парком во французском стиле, фитнес-клубом и частным детским садом ...
Читать статью
Резиденции с парком и фонтаном в окружении леса ...
Читать статью
Готовые резиденции с прудом, детскими площадками и зелёным ландшафтом в окружении парков ...
Читать статью
Читать блог
Похожие объекты
Посмотрите соседние посёлки
Лесные зори
от 26,000,000 Р 292,000 € 342,000 $ за объект
коттедж
Удаленность от МКАД:26 КМ
Шоссе:Новорижское
Объектов:31
Новораково
коттедж
Удаленность от МКАД:59 КМ
Шоссе:Новорижское
Объектов:0
Зайцево Парк
от 95,000,000 Р 1,038,000 € 1,209,000 $ за объект
коттедж
Удаленность от МКАД:19 КМ
Шоссе:Минское
Объектов:8