Выбирайте загородные участки и дома с помощью портала kypitedom.com
/

Коттедж со спа-зоной 650 м², лот 14147

Продается Коттедж со спа-зоной, 650 м², лот 14147 уникальное предложение в Подмосковье. С фотографиями, планировками и ценой.
Запишитесь на просмотр.
250,000,000 Р
2,717,000 €
3,220,000 $
Р $
Лот14147
Площадь дома650 м²
Площадь участка 18 соток
Этажность3
Спальни3
Удаленность от МКАД18 км
ШоссеНоворижское
Тип домакоттедж
Отделка«под ключ»

Описание

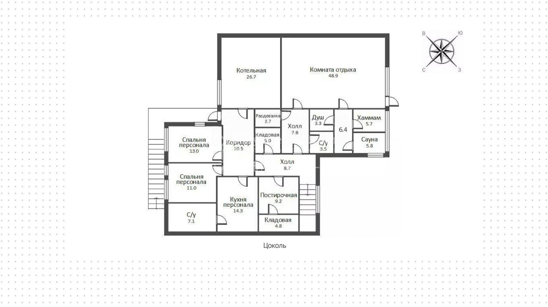
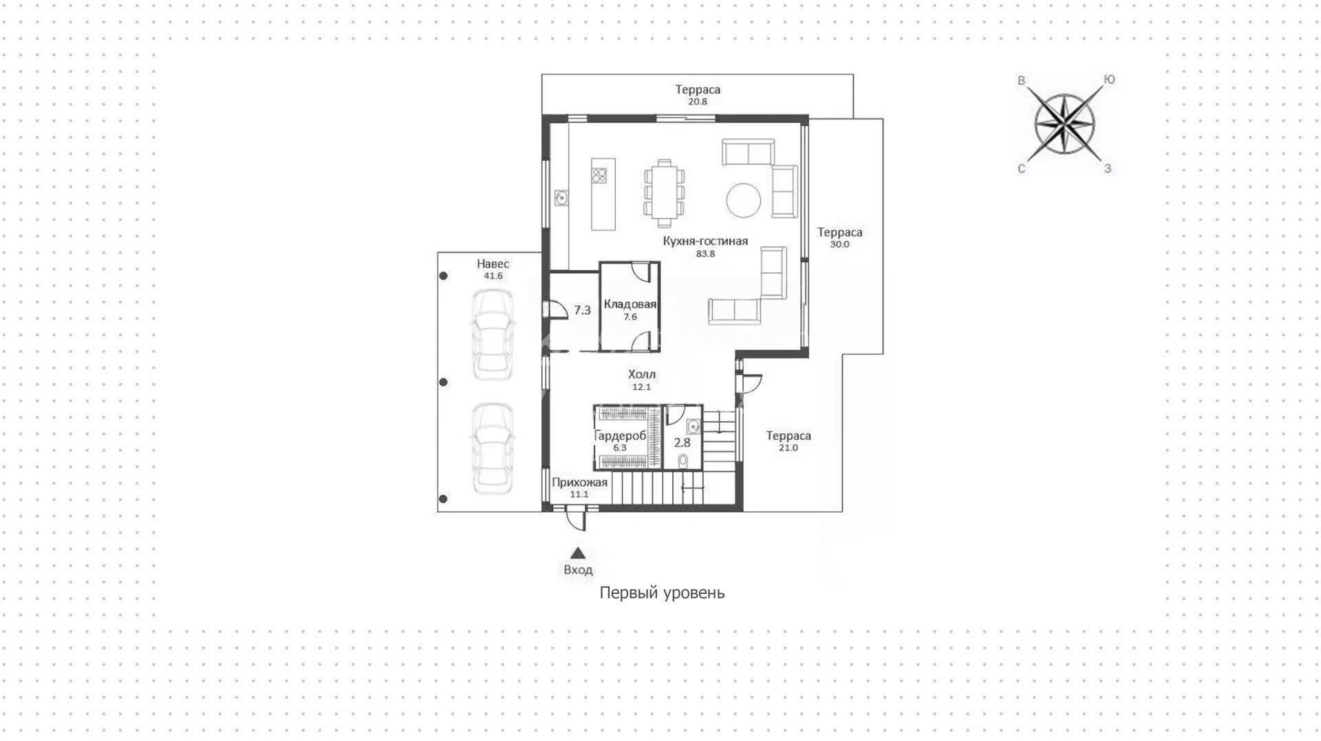
Загородный коттедж площадью 650 м² расположен на живописном лесном участке 18 соток. Современный фасад, сочетающий белоснежную штукатурку, камень и дерево, органично вписан в ландшафт — высокая сосна эффектно произрастает сквозь конструкцию террас. Панорамные окна стирают грань между окружающим лесом и наполненными солнцем внутренними пространствами. Интерьеры оформлены в светлых, спокойных тонах, а также дополнены контрастными деталями. Встроенная мебель и бытовая техника сделают жизнь здесь комфортной. Главной точкой притяжения стала просторная гостиная с камином, объединённая с кухней-столовой с удобным островом. Для отдыха и расслабления обустроены три спальни, вместительные гардеробные и роскошная спа-зона, включающая сауну и хаммам с остеклением «в пол». Дополнительными преимуществами стали квартира для персонала с двумя спальнями и навес для автомобилей. На участке насладитесь тишиной и ароматом хвои, прогуливаясь по пошаговым дорожкам в тени вековых деревьев. Здесь вас ждет уютная беседка с зоной для барбекю, из которой открывается прекрасный вид на пруд.
Скачайте PDF
Презентация дома в посёлке «Веледниково»

в pdf
Скачайте полную презентацию лота в один клик
*Время загрузки файла - 4 секунды
Ставка от
9.3%
Первый взнос от
15%
Ежемесячный платёж от
80 463 ₽
Банки
Стоимость недвижимости
Первоначальный взнос
Срок, лет
Просторные резиденции с парком во французском стиле, фитнес-клубом и частным детским садом ...
Читать статью
Резиденции с парком и фонтаном в окружении леса ...
Читать статью
Готовые резиденции с прудом, детскими площадками и зелёным ландшафтом в окружении парков ...
Читать статью
Читать блог
Похожие объекты
Посмотрите соседние посёлки
Лесные зори
от 26,000,000 Р 292,000 € 342,000 $ за объект
коттедж
Удаленность от МКАД:26 КМ
Шоссе:Новорижское
Объектов:31
Новораково
коттедж
Удаленность от МКАД:59 КМ
Шоссе:Новорижское
Объектов:0
Зайцево Парк
от 95,000,000 Р 1,038,000 € 1,209,000 $ за объект
коттедж
Удаленность от МКАД:19 КМ
Шоссе:Минское
Объектов:8