Выбирайте загородные участки и дома с помощью портала kypitedom.com
/

Коттедж в неоклассическом стиле 307 м², лот 13302

Продается Коттедж в неоклассическом стиле, 307 м², лот 13302 уникальное предложение в Подмосковье. С фотографиями, планировками и ценой.
Запишитесь на просмотр.
105,000,000 Р
1,159,000 €
1,329,000 $
Р $
Лот13302
Площадь дома307 м²
Площадь участка 7.7 соток
Этажность2
Спальни4
Удаленность от МКАД24 км
ШоссеНоворижское
Тип домакоттедж
Отделкабез отделки

Описание

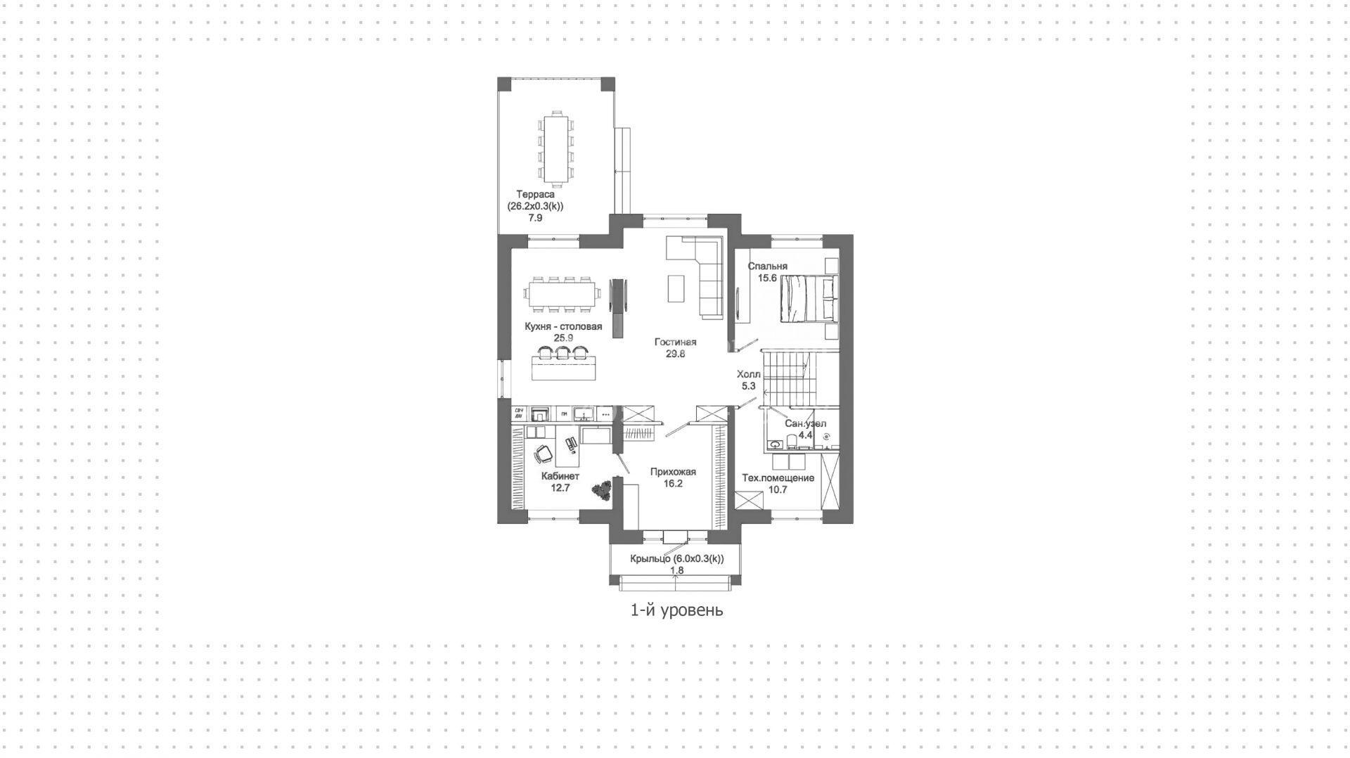
Новый загородный коттедж площадью 307 м² расположен на полевом участке правильной формы 7,7 соток. Фасад здания с выступающей крышей выполнен в неоклассическом стиле, отделан натуральными песчаником и планкеном в серо-молочной гамме, входная группа декорирована колоннами. Отсутствие отделки позволяет будущим владельцам выбрать финишные покрытия, мебель и технику на свой вкус. Потолки высотой 3,3 метра и панорамное остекление наполняют дом воздухом и солнечными лучами. Планировка включает гостиную, объединенную в единое пространство с кухней-столовой, кабинет и 4 спальни, включая мастер-спальню с гардеробной и выходом на просторный балкон, откуда открывается живописный вид на поселок. Рядом с основным зданием предусмотрено место для парковки 2-х автомобилей. На территории с газоном и высаженными по периметру кустарниками и деревьями можно выполнить ландшафтный дизайн и обустроить бассейн, уютную беседку для барбекю или детскую площадку.
Скачайте PDF
Презентация дома в посёлке «Millennium Park»
8.1MB
в pdf
Скачайте полную презентацию лота в один клик
*Время загрузки файла - 4 секунды
Ставка от
9.3%
Первый взнос от
15%
Ежемесячный платёж от
80 463 ₽
Банки
Стоимость недвижимости
Первоначальный взнос
Срок, лет
Просторные резиденции с парком во французском стиле, фитнес-клубом и частным детским садом ...
Читать статью
Резиденции с парком и фонтаном в окружении леса ...
Читать статью
Готовые резиденции с прудом, детскими площадками и зелёным ландшафтом в окружении парков ...
Читать статью
Читать блог
Похожие объекты
Посмотрите соседние посёлки
Голицыно
от 21,000,000 Р 222,000 € 259,000 $ за объект
коттедж
Удаленность от МКАД:30 КМ
Шоссе:Можайское
Объектов:2
Аносино Парк
от 37,000,000 Р 393,000 € 455,000 $ за объект
коттедж
Удаленность от МКАД:27 КМ
Шоссе:Новорижское
Объектов:3
Палицы
от 42,600,000 Р 452,000 € 526,000 $ за объект
коттедж
Удаленность от МКАД:28 КМ
Шоссе:Ильинское
Объектов:4