Выбирайте загородные участки и дома с помощью портала kypitedom.com
/

Просторный дом 354 м², лот 8290

Продается Просторный дом, 354 м², лот 8290 уникальное предложение в Подмосковье. С фотографиями, планировками и ценой.
Запишитесь на просмотр.
Показать генплан
Цена по запросу
Цена по запросу
Цена по запросу
Р $
Лот8290
Площадь дома354 м²
Площадь участка 11 соток
Этажность2
Спальни6
Удаленность от МКАД9 км
ШоссеНоворижское
Тип домакоттедж
Отделка«под ключ»

Описание

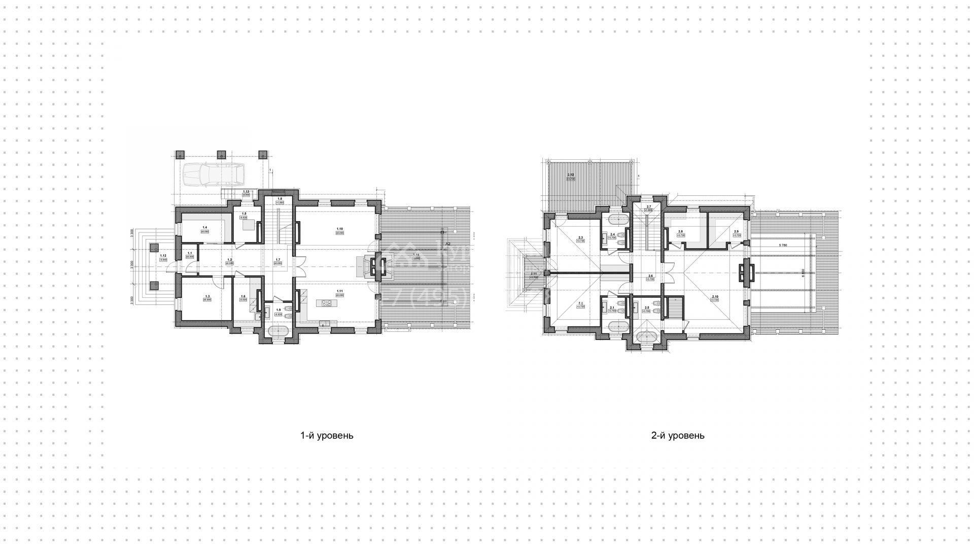
Двухэтажный дом площадью 354 м² подойдет как для постоянного проживания, так и для летнего отдыха. Он расположен на участке 11 соток с газоном. Фасад дома разработан бюро Павла Романова в американском стиле, облицован натуральным камнем светлого оттенка. Сбоку пристроен навес для машины. В доме 6 спален, 5 санузлов, уютная гостиная-столовая и кухня, оборудованная встроенной техникой. Дом полностью меблирован «под ключ» и готов к проживанию.

Поэтажное описание

1-й уровень: холл, гардеробная, кабинет, гостиная с камином, кухня-столовая, спальня, санузел. 2-й уровень: 2 спальни, главная спальня , гардеробная.
Скачайте PDF
Презентация дома в посёлке «Прозорово»
2.8MB
в pdf
Скачайте полную презентацию лота в один клик
*Время загрузки файла - 4 секунды
Ставка от
9.3%
Первый взнос от
15%
Ежемесячный платёж от
80 463 ₽
Банки
Стоимость недвижимости
Первоначальный взнос
Срок, лет
Просторные резиденции с парком во французском стиле, фитнес-клубом и частным детским садом ...
Читать статью
Резиденции с парком и фонтаном в окружении леса ...
Читать статью
Готовые резиденции с прудом, детскими площадками и зелёным ландшафтом в окружении парков ...
Читать статью
Читать блог
Похожие объекты
Посмотрите соседние посёлки
Лесные зори
от 26,000,000 Р 292,000 € 342,000 $ за объект
коттедж
Удаленность от МКАД:26 КМ
Шоссе:Новорижское
Объектов:31
Новораково
коттедж
Удаленность от МКАД:59 КМ
Шоссе:Новорижское
Объектов:0
Зайцево Парк
от 95,000,000 Р 1,038,000 € 1,209,000 $ за объект
коттедж
Удаленность от МКАД:19 КМ
Шоссе:Минское
Объектов:8