Выбирайте загородные участки и дома с помощью портала kypitedom.com
/

Просторный загородный дом 493 м², лот 5367

Продается Просторный загородный дом, 493 м², лот 5367 уникальное предложение в Подмосковье. С фотографиями, планировками и ценой.
Запишитесь на просмотр.
114,100,000 Р
1,239,000 €
1,469,000 $
Р $
Лот5367
Площадь дома493 м²
Площадь участка 26 соток
Этажность2
Спальни3
Удаленность от МКАД22 км
ШоссеМинское
Тип домакоттедж
Отделкабез отделки

Описание

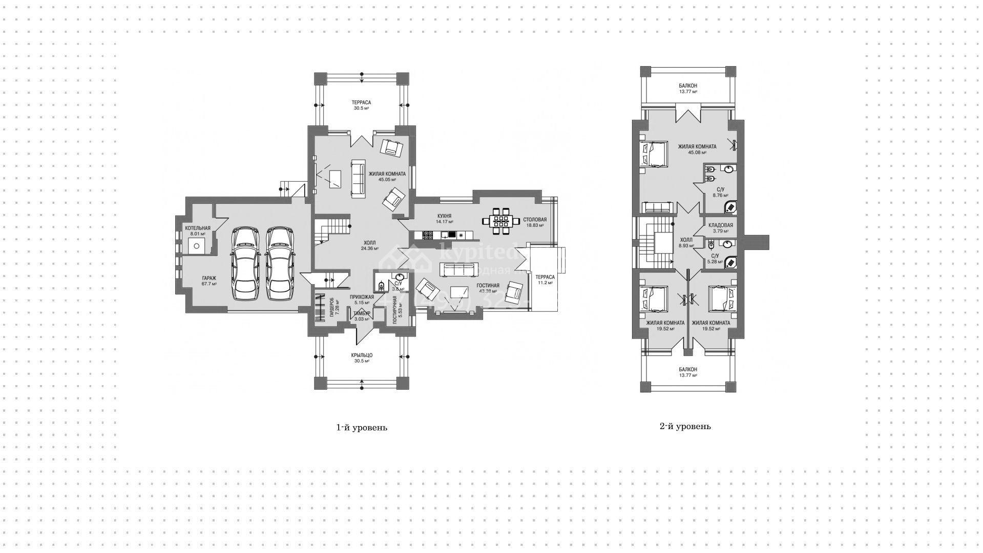
Просторный двухэтажный коттедж со встроенным гаражом и 3-мя спальнями расположен на угловом участке в центральной части поселка. На первом этаже кухня, столовая, гостиная с выходом на террасу, комната отдыха с террасой и теплый гараж на 2 машины. На втором этаже 3 спальни и 2 санузла.

Поэтажное описание

1-й уровень: прихожая, гардероб, постирочная с санузлом, вход в гараж на 2 машины и котельную, гостиная с террасой, столовая, кухня, жилая комната с террасой 30 м². 2-й уровень: холл с санузлом и кладовой, 2 спальни с выходом на общий балкон, спальня с санузлом и выходом на балкон.
Скачайте PDF
Презентация дома в посёлке «Крёкшино»
7.1MB
в pdf
Скачайте полную презентацию лота в один клик
*Время загрузки файла - 4 секунды
Ставка от
9.3%
Первый взнос от
15%
Ежемесячный платёж от
80 463 ₽
Банки
Стоимость недвижимости
Первоначальный взнос
Срок, лет
Просторные резиденции с парком во французском стиле, фитнес-клубом и частным детским садом ...
Читать статью
Резиденции с парком и фонтаном в окружении леса ...
Читать статью
Готовые резиденции с прудом, детскими площадками и зелёным ландшафтом в окружении парков ...
Читать статью
Читать блог
Похожие объекты
Посмотрите соседние посёлки
Лесные зори
от 26,000,000 Р 292,000 € 342,000 $ за объект
коттедж
Удаленность от МКАД:26 КМ
Шоссе:Новорижское
Объектов:31
Новораково
коттедж
Удаленность от МКАД:59 КМ
Шоссе:Новорижское
Объектов:0
Зайцево Парк
от 95,000,000 Р 1,038,000 € 1,209,000 $ за объект
коттедж
Удаленность от МКАД:19 КМ
Шоссе:Минское
Объектов:8