Выбирайте загородные участки и дома с помощью портала kypitedom.com
/

Резиденция с бассейном 1130 м², лот 13215

Продается Резиденция с бассейном, 1130 м², лот 13215 уникальное предложение в Подмосковье. С фотографиями, планировками и ценой.
Запишитесь на просмотр.
Показать генплан
1,070,000,000 Р
11,752,000 €
13,886,000 $
Р $
Лот13215
Площадь дома1130 м²
Площадь участка 88 соток
Этажность2
Спальни5
Удаленность от МКАД19 км
ШоссеНоворижское
Тип домакоттедж
Отделка«под ключ»

Описание

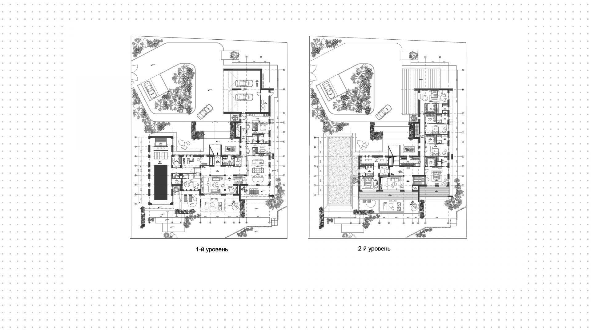
Резиденция от итальянского бюро La Project площадью 1130 м² построена на участке 88 соток вдоль границы леса. Архитектурные решения и организация пространства дома основаны на игре света и тени, которая обеспечивается благодаря сочетанию фактур, панорамных окон и широкого спектра светлых и теплых цветов. Дизайн интерьера воплощает минимализм с использованием высококачественных материалов — натурального камня, дерева, керамики с бетонной текстурой, металла и дымчатого стекла.

В проекте предусмотрены большие открытые участки, которые создают ощущение простора и воздушности. В то время как функциональные зоны выделяются за счет уровневых решений и объемных перегородок. Мебель и декор тщательно подобраны и изготовлены под заказ от ведущих производителей — Misuraemme, Frag, Alta Cucine, Galotti & Radice, Casamilano, La Cividina и другие. Люстры и светильники представлены от брендов Davide Groppi, Penta Light, Altura, Axel Open System и Castladi. Сантехника Flaminia, Axaone, One Evolution. Техника Miele и Smeg.

Первый уровень включает гостиную, кабинет, кухню и столовую с выходом на патио, откуда открываются виды на зеленый сад. Дополнительно здесь располагается спа-зона с бассейном, сауной и тренажерным залом. Завершают этаж две квартиры для персонала и гараж на четыре машины. На втором уровне спроектированы пять спален с гардеробными и санузлами, а также две террасы. На участке с ландшафтным дизайном засеян газон, высажены деревья и кустарники, оборудовано уличное освещение.
Скачайте PDF
Презентация дома в посёлке «Ренессанс Парк»
3MB
в pdf
Скачайте полную презентацию лота в один клик
*Время загрузки файла - 4 секунды
Ставка от
9.3%
Первый взнос от
15%
Ежемесячный платёж от
80 463 ₽
Банки
Стоимость недвижимости
Первоначальный взнос
Срок, лет
Просторные резиденции с парком во французском стиле, фитнес-клубом и частным детским садом ...
Читать статью
Резиденции с парком и фонтаном в окружении леса ...
Читать статью
Готовые резиденции с прудом, детскими площадками и зелёным ландшафтом в окружении парков ...
Читать статью
Читать блог
Похожие объекты
Посмотрите соседние посёлки
Лесные зори
от 26,000,000 Р 292,000 € 342,000 $ за объект
коттедж
Удаленность от МКАД:26 КМ
Шоссе:Новорижское
Объектов:31
Новораково
коттедж
Удаленность от МКАД:59 КМ
Шоссе:Новорижское
Объектов:0
Зайцево Парк
от 95,000,000 Р 1,038,000 € 1,209,000 $ за объект
коттедж
Удаленность от МКАД:19 КМ
Шоссе:Минское
Объектов:8