Выбирайте загородные участки и дома с помощью портала kypitedom.com
/

Резиденция с отделкой 900 м², лот 9030

Продается Резиденция с отделкой, 900 м², лот 9030 уникальное предложение в Подмосковье. С фотографиями, планировками и ценой.
Запишитесь на просмотр.
299,000,000 Р
3,301,000 €
3,902,000 $
Р $
Лот9030
Площадь дома900 м²
Площадь участка 35 соток
Этажность3
Спальни5
Удаленность от МКАД21 км
ШоссеНоворижское
Тип домакоттедж
Отделка«под ключ»

Описание

Комплекс из главного дома 900 м² и гостевого дома 450 м² расположен на участке 35 соток с ландшафтным дизайном. Главный дом облицован травертином и украшен колоннами в классическом стиле. Интерьер выполнен в стиле «Ар-деко» с использованием натурального камня и ценного дерева. На полу панно из нескольких видов мрамора. Полы второго этажа из нескольких сортов массива. В парадной двухсветной гостиной установлен камин, расставлена итальянская мебель Vissionere и установлены люстры Baroviere&Tosso. Белая кухня фирмы Arca укомплектована европейской техникой. В санузлах установлена дизайнерская сантехника Vissionere.
На участке 35 соток постелили ровный газон, посадили декоративные кустарники и растения. Рядом с главным домом построили гостевой дом 450 м² со спа-зоной и барбекю.

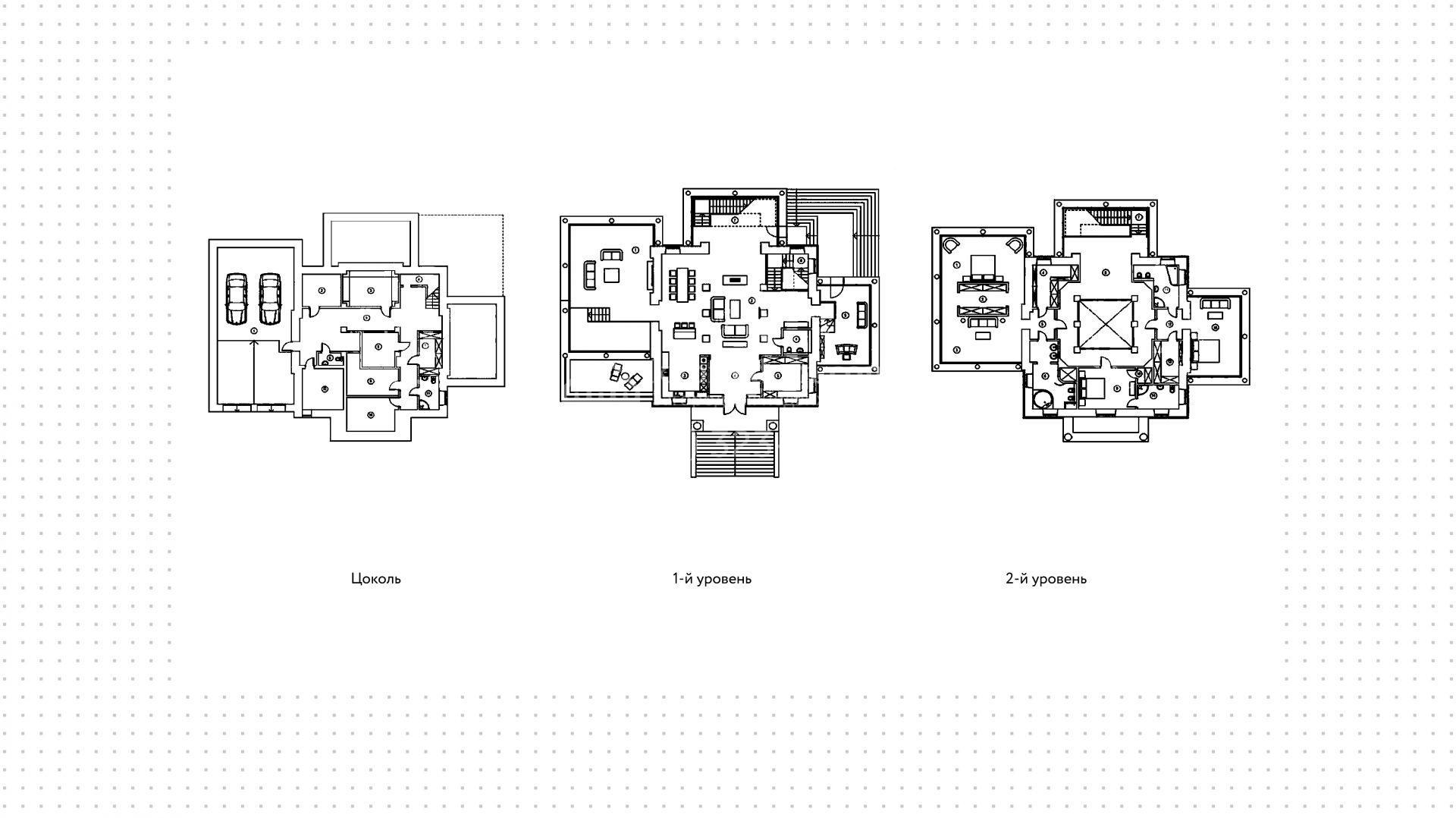
Поэтажное описание

Главный дом, цоколь: кухня, 2 спальни, 2 санузла, винный погреб, постирочная, котельная, гараж на 4 машины. 1-й уровень: кухня-столовая, двусветная гостиная с выходом на террасу, кинозал с выходом на террасу, кабинет, гостевой санузел, гардероб. 2-й уровень: спальня с будуаром, 2-мя гардеробными и санузлом, спальня с гардеробной, санузлом и выходом на балкон, спальня с гардеробной и санузлом. Гостевой дом: 1-й уровень: терраса с барбекю, двусветная бильярдная с камином, гардеробная, кухня, комната отдыха с бассейном и панорамным остеклением, сауна, массажный кабинет, санузел с душевой, спортзал. 2-й уровень: второй свет, 2 спальни с санузлами и выходом на балкон.
Скачайте PDF
Презентация дома в посёлке «Монолит»
8.7MB
в pdf
Скачайте полную презентацию лота в один клик
*Время загрузки файла - 4 секунды
Ставка от
9.3%
Первый взнос от
15%
Ежемесячный платёж от
80 463 ₽
Банки
Стоимость недвижимости
Первоначальный взнос
Срок, лет
Просторные резиденции с парком во французском стиле, фитнес-клубом и частным детским садом ...
Читать статью
Резиденции с парком и фонтаном в окружении леса ...
Читать статью
Готовые резиденции с прудом, детскими площадками и зелёным ландшафтом в окружении парков ...
Читать статью
Читать блог
Похожие объекты
Посмотрите соседние посёлки
Лесные зори
от 26,000,000 Р 292,000 € 342,000 $ за объект
коттедж
Удаленность от МКАД:26 КМ
Шоссе:Новорижское
Объектов:31
Новораково
коттедж
Удаленность от МКАД:59 КМ
Шоссе:Новорижское
Объектов:0
Зайцево Парк
от 95,000,000 Р 1,038,000 € 1,209,000 $ за объект
коттедж
Удаленность от МКАД:19 КМ
Шоссе:Минское
Объектов:8