Выбирайте загородные участки и дома с помощью портала kypitedom.com
/

Резиденция с прудом 1265 м², лот 9713

Продается Резиденция с прудом, 1265 м², лот 9713 уникальное предложение в Подмосковье. С фотографиями, планировками и ценой.
Запишитесь на просмотр.
855,000,000 Р
9,439,000 €
11,157,000 $
Р $
Лот9713
Площадь дома1265 м²
Площадь участка 100 соток
Этажность2
Спальни4
Удаленность от МКАД20 км
ШоссеНоворижское
Тип домакоттедж
Отделка«под ключ»

Описание

Загородная резиденция в стиле «шале» площадью 1265 м² с просторной верандой 300 м² и домом для персонала 112 м² расположена на полевом участке 1 гектар около речки Родник. Фасад отличается панорамным остеклением и отделкой в природных тонах. Смысловой центр дома — двухсветная гостиная с камином. Интерьер выполнен с элементами восточного стиля в цвете темного дерева. Для отдыха предусмотрена зона СПА с бассейном. Летом можно обедать на террасе печью барбекю и видом на воду.
На территории выполнены ландшафтные работы, посажены декоративные растения и кустарники, вымощены дорожки. Летняя веранда стоит на искусственном пруду с водопадом и живописно отражается в воде.

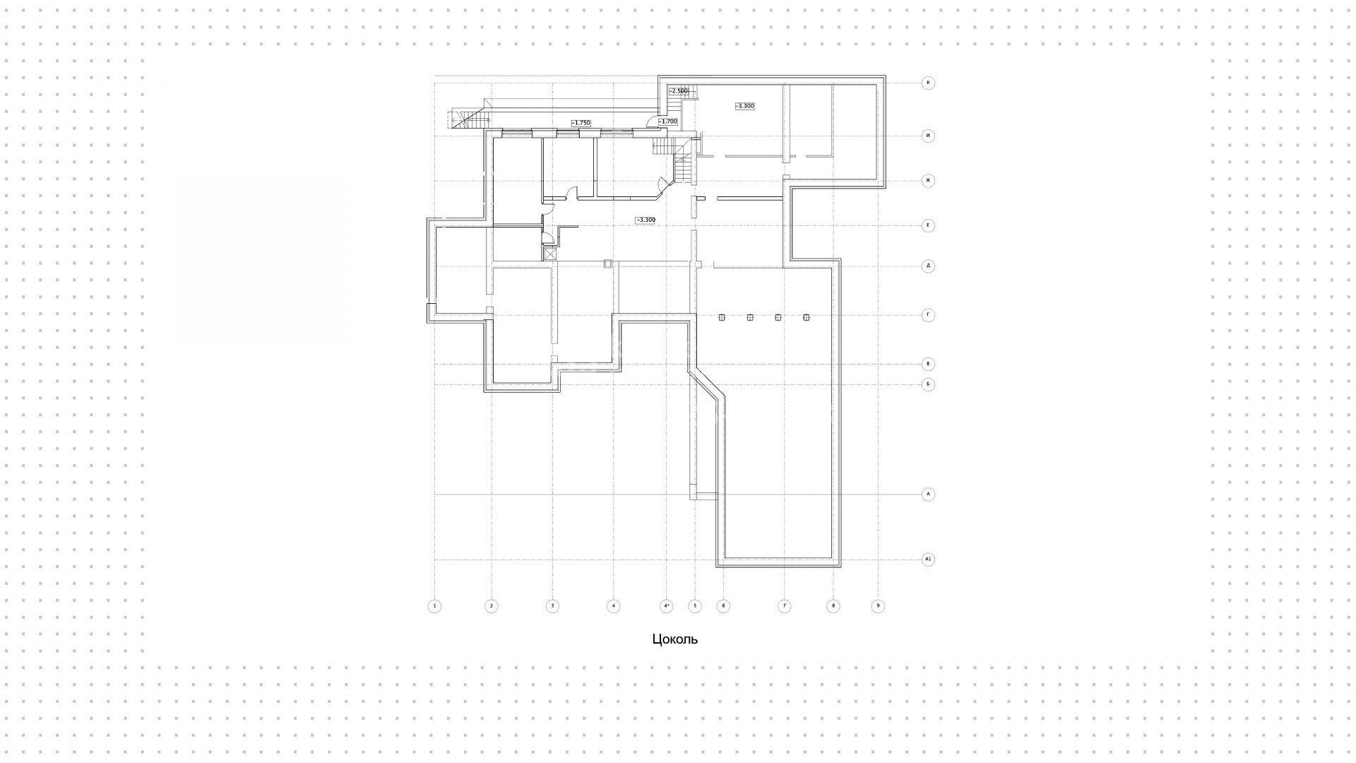
Поэтажное описание

Цоколь: служебные помещения. 1-й уровень: холл с гардеробной и санузлом, кухня с кладовой, столовая, гостиная, спальня с санузлом, гардеробная, тамбур, постирочная, гараж; СПА-зона с бассейном и сауной. Выход на крытую веранду 300 м². 2-й уровень: 3 спальни с гардеробными и санузлами, кабинет, гостиная/игровая с санузлом.
Скачайте PDF
Презентация дома в посёлке «Резиденции Бенилюкс»

в pdf
Скачайте полную презентацию лота в один клик
*Время загрузки файла - 4 секунды
Ставка от
9.3%
Первый взнос от
15%
Ежемесячный платёж от
80 463 ₽
Банки
Стоимость недвижимости
Первоначальный взнос
Срок, лет
Просторные резиденции с парком во французском стиле, фитнес-клубом и частным детским садом ...
Читать статью
Резиденции с парком и фонтаном в окружении леса ...
Читать статью
Готовые резиденции с прудом, детскими площадками и зелёным ландшафтом в окружении парков ...
Читать статью
Читать блог
Похожие объекты
Посмотрите соседние посёлки
Лесные зори
от 26,000,000 Р 292,000 € 342,000 $ за объект
коттедж
Удаленность от МКАД:26 КМ
Шоссе:Новорижское
Объектов:31
Новораково
коттедж
Удаленность от МКАД:59 КМ
Шоссе:Новорижское
Объектов:0
Зайцево Парк
от 95,000,000 Р 1,038,000 € 1,209,000 $ за объект
коттедж
Удаленность от МКАД:19 КМ
Шоссе:Минское
Объектов:8