Выбирайте загородные участки и дома с помощью портала kypitedom.com
/

Резиденция «Шардоне» 420 м², лот 9722

Продается Резиденция «Шардоне», 420 м², лот 9722 уникальное предложение в Подмосковье. С фотографиями, планировками и ценой.
Запишитесь на просмотр.
Показать генплан
152,000,000 Р
1,679,000 €
1,953,000 $
Р $
Лот9722
Площадь дома420 м²
Площадь участка 10.9 соток
Этажность3
Спальни6
Удаленность от МКАД24 км
ШоссеНоворижское
Тип домакоттедж
Отделка«под ключ»

Описание

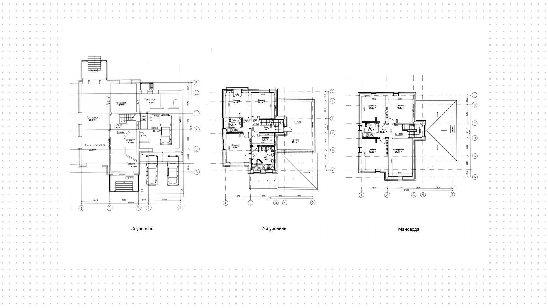
Трехэтажный коттедж площадью 420 м² по проекту «Шардоне» построен на полевом участке 11 соток. Фасад, выполненный в лаконичном французском стиле, покрыт кирпичом светло-бежевого и серого оттенков и выделяется фронтонами и многоскатной крышей. Интерьеры представлены с отделкой «под ключ». В доме реализована функциональная планировка, которая включает просторную гостиную, объединенную с кухней-столовой, мастер-спальню со своим санузлом и гардеробной, 5 спален, кабинет, бильярдную, террасу. На территории предусмотрен гараж для одной машины и навес для двух автомобилей. Также спроектирована баня, которую можно использовать в качестве гостевого дома. Вокруг выполнен ландшафтный дизайн, посажен газон и выложены дорожки.

Поэтажное описание

1-й уровень: прихожая, гардеробная, кухня/столовая/гостиная, кабинет, санузел, бойлерная, гараж. 2-й уровень: игровая, мастер-спальня, большая ванная комната с санузлом, гардеробной и построчной, две детские комнаты, детский санузел. мансарда: три гостевые комнаты, санузел, бильярдная.
Скачайте PDF
Презентация дома в посёлке «Княжье Озеро»
5.2MB
в pdf
Скачайте полную презентацию лота в один клик
*Время загрузки файла - 4 секунды
Ставка от
9.3%
Первый взнос от
15%
Ежемесячный платёж от
80 463 ₽
Банки
Стоимость недвижимости
Первоначальный взнос
Срок, лет
Просторные резиденции с парком во французском стиле, фитнес-клубом и частным детским садом ...
Читать статью
Резиденции с парком и фонтаном в окружении леса ...
Читать статью
Готовые резиденции с прудом, детскими площадками и зелёным ландшафтом в окружении парков ...
Читать статью
Читать блог
Похожие объекты
Посмотрите соседние посёлки
Новораково
коттедж
Удаленность от МКАД:59 КМ
Шоссе:Новорижское
Объектов:0
Зайцево Парк
от 95,000,000 Р 1,038,000 € 1,209,000 $ за объект
коттедж
Удаленность от МКАД:19 КМ
Шоссе:Минское
Объектов:8
Голицыно
от 21,000,000 Р 232,000 € 270,000 $ за объект
коттедж
Удаленность от МКАД:30 КМ
Шоссе:Можайское
Объектов:2