Выбирайте загородные участки и дома с помощью портала kypitedom.com
/

Семейный загородный дом 344 м², лот 5376

Продается Семейный загородный дом, 344 м², лот 5376 уникальное предложение в Подмосковье. С фотографиями, планировками и ценой.
Запишитесь на просмотр.
66,200,000 Р
731,000 €
864,000 $
Р $
Лот5376
Площадь дома344 м²
Площадь участка 12 соток
Этажность2
Спальни3
Удаленность от МКАД22 км
ШоссеМинское
Тип домакоттедж
Отделкабез отделки

Описание

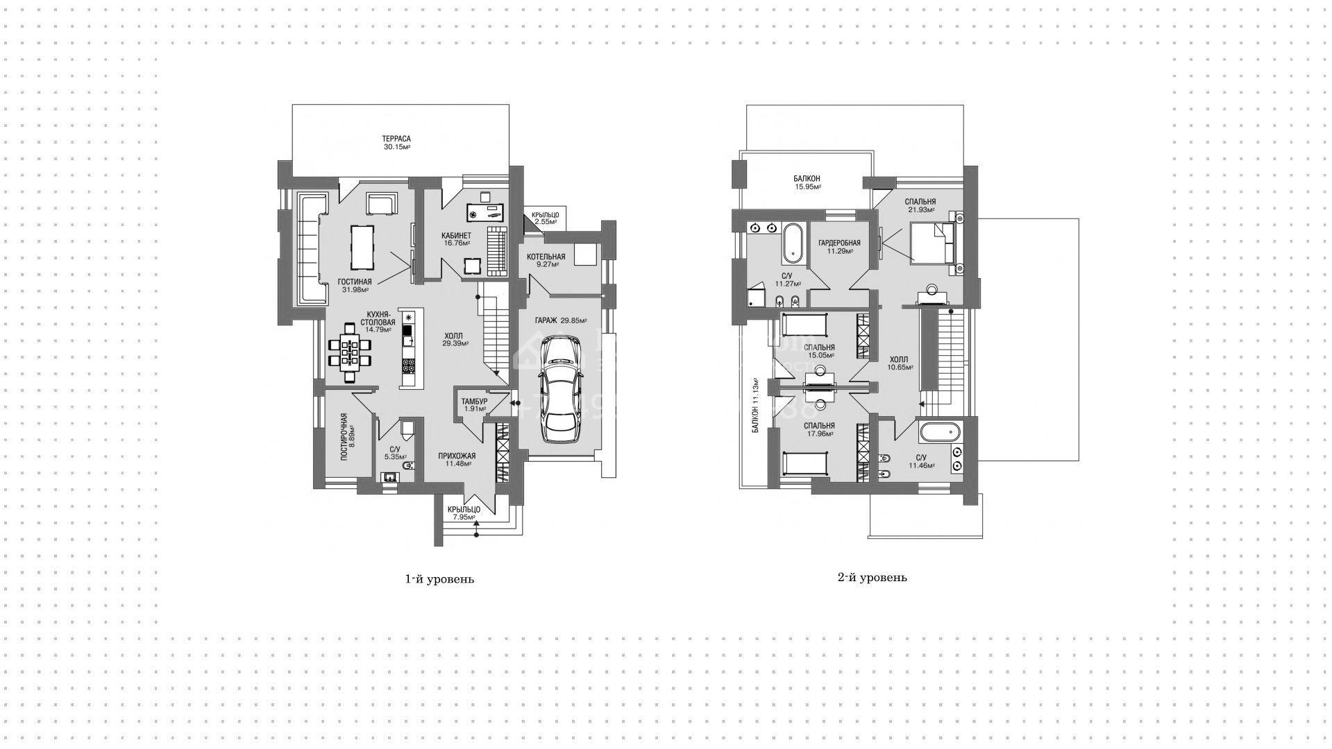
Двухэтажный коттедж без отделки построен на полевом участке 12 соток. Современный фасад дома облицован керамическим крупноформатным камнем, бетонной плиткой и фасадной доской. Первый этаж занимает встроенный гараж, кухня-остров, гостиная и кабинет с выходами на террасу. На втором этаже 3 спальни, 2 санузла и 2 балкона. Общая площадь дома 344 м².

Поэтажное описание

1-й уровень: прихожая, санузел, постирочная, выход в гараж и котельную; кухня-столовая, гостиная с выходом на террасу, кабинет с выходом на террасу. 2-й уровень: 2 спальни с выходом на общий балкон, санузел, спальня с гардеробной, санузлом и выходом на балкон.
Скачайте PDF
Презентация дома в посёлке «Крёкшино»
7.1MB
в pdf
Скачайте полную презентацию лота в один клик
*Время загрузки файла - 4 секунды
Ставка от
9.3%
Первый взнос от
15%
Ежемесячный платёж от
80 463 ₽
Банки
Стоимость недвижимости
Первоначальный взнос
Срок, лет
Просторные резиденции с парком во французском стиле, фитнес-клубом и частным детским садом ...
Читать статью
Резиденции с парком и фонтаном в окружении леса ...
Читать статью
Готовые резиденции с прудом, детскими площадками и зелёным ландшафтом в окружении парков ...
Читать статью
Читать блог
Похожие объекты
Посмотрите соседние посёлки
Лесные зори
от 26,000,000 Р 292,000 € 342,000 $ за объект
коттедж
Удаленность от МКАД:26 КМ
Шоссе:Новорижское
Объектов:31
Новораково
коттедж
Удаленность от МКАД:59 КМ
Шоссе:Новорижское
Объектов:0
Зайцево Парк
от 95,000,000 Р 1,038,000 € 1,209,000 $ за объект
коттедж
Удаленность от МКАД:19 КМ
Шоссе:Минское
Объектов:8