Выбирайте загородные участки и дома с помощью портала kypitedom.com
/

Таунхаус с 3-мя спальнями 262 м², лот 9570

Продается Таунхаус с 3-мя спальнями, 262 м², лот 9570 уникальное предложение в Подмосковье. С фотографиями, планировками и ценой.
Запишитесь на просмотр.
Показать генплан
Видео о поселке
80,000,000 Р
883,000 €
1,044,000 $
Р $
Лот9570
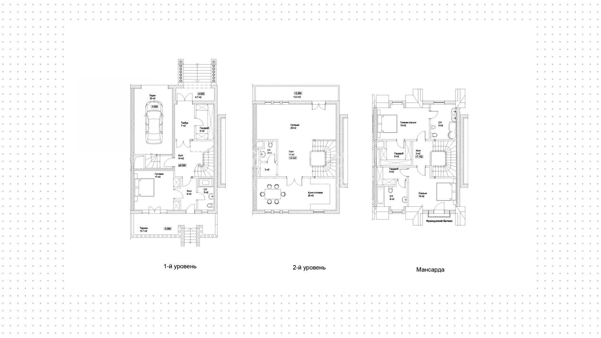
Площадь дома262 м²
Площадь участка 2.6 сотки
Этажность3
Спальни3
Удаленность от МКАД12 км
ШоссеМинское
Тип доматаунхаус
Отделкабез отделки

Описание

Таунхаус во фламандском стиле площадью 262 м² расположен в середине секции. Трехэтажный фасад здания облицован клинкерной плиткой и белой штукатуркой, украшен панно с львами и кованными ограждениями террас. В первый этаж встроен гараж для машины. В таунхаусе можно выполнить отделку на свой вкус, разместить до 3 спален и просторную кухню-гостиную с выходом на террасу. На участке 2,6 сотки посадили газон.
Скачайте PDF
Презентация таунхауса в посёлке «Довиль»
317.2KB
в pdf
Скачайте полную презентацию лота в один клик
*Время загрузки файла - 4 секунды
Ставка от
9.3%
Первый взнос от
15%
Ежемесячный платёж от
80 463 ₽
Банки
Стоимость недвижимости
Первоначальный взнос
Срок, лет
Просторные резиденции с парком во французском стиле, фитнес-клубом и частным детским садом ...
Читать статью
Резиденции с парком и фонтаном в окружении леса ...
Читать статью
Готовые резиденции с прудом, детскими площадками и зелёным ландшафтом в окружении парков ...
Читать статью
Читать блог
Похожие объекты
Посмотрите соседние посёлки
Лесные зори
от 26,000,000 Р 292,000 € 342,000 $ за объект
коттедж
Удаленность от МКАД:26 КМ
Шоссе:Новорижское
Объектов:31
Новораково
коттедж
Удаленность от МКАД:59 КМ
Шоссе:Новорижское
Объектов:0
Зайцево Парк
от 95,000,000 Р 1,038,000 € 1,209,000 $ за объект
коттедж
Удаленность от МКАД:19 КМ
Шоссе:Минское
Объектов:8