Выбирайте загородные участки и дома с помощью портала kypitedom.com
/

Четырехэтажный таунхаус 385 м², лот 9773

Продается Четырехэтажный таунхаус, 385 м², лот 9773 уникальное предложение в Подмосковье. С фотографиями, планировками и ценой.
Запишитесь на просмотр.
Показать генплан
Видео о поселке
120,000,000 Р
1,296,000 €
1,486,000 $
Р $
Лот9773
Площадь дома385 м²
Площадь участка 5.7 соток
Этажность4
Спальни4
Удаленность от МКАД12 км
ШоссеМинское
Тип доматаунхаус
Отделкабез отделки

Описание

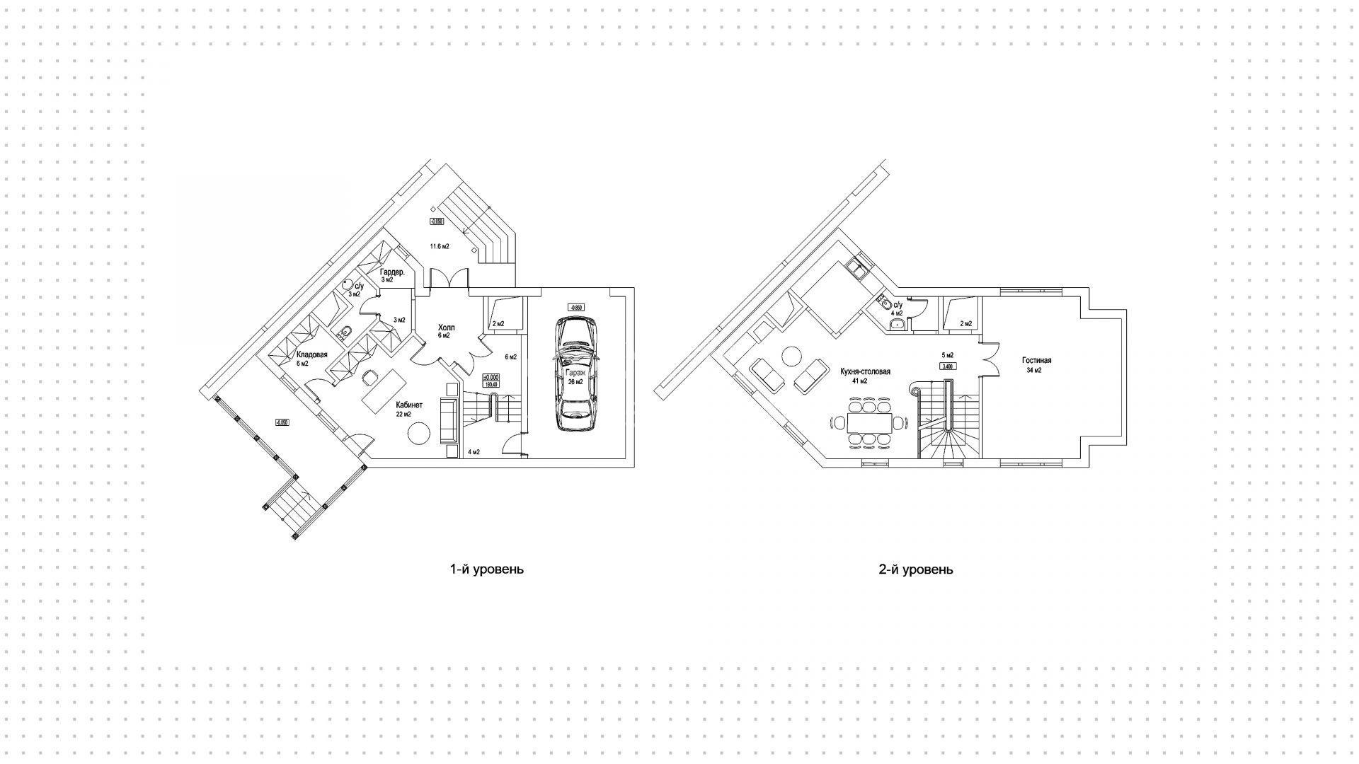
Семейный четырехэтажный таунхаус во фламандском стиле площадью 385 м² без отделки расположен в правой части здания с башенкой. Фасад богато украшен рустовкой, декоративными балками в стиле «фахверк», мозаикой и клинкером. На первом этаже расположен гараж для машины и технические помещения. На втором этаже кухня-столовая и гостиная. Два верхних этажа занимают 4 спальни с санузлами и гардеробными. К таунхаусу примыкает участок 5,7 соток с газоном, где можно разместить зону барбекю.
Скачайте PDF
Презентация таунхауса в посёлке «Довиль»
317.2KB
в pdf
Скачайте полную презентацию лота в один клик
*Время загрузки файла - 4 секунды
Ставка от
9.3%
Первый взнос от
15%
Ежемесячный платёж от
80 463 ₽
Банки
Стоимость недвижимости
Первоначальный взнос
Срок, лет
Просторные резиденции с парком во французском стиле, фитнес-клубом и частным детским садом ...
Читать статью
Резиденции с парком и фонтаном в окружении леса ...
Читать статью
Готовые резиденции с прудом, детскими площадками и зелёным ландшафтом в окружении парков ...
Читать статью
Читать блог
Похожие объекты
Посмотрите соседние посёлки
Голицыно
от 21,000,000 Р 222,000 € 259,000 $ за объект
коттедж
Удаленность от МКАД:30 КМ
Шоссе:Можайское
Объектов:2
Аносино Парк
от 37,000,000 Р 393,000 € 455,000 $ за объект
коттедж
Удаленность от МКАД:27 КМ
Шоссе:Новорижское
Объектов:3
Палицы
от 42,600,000 Р 452,000 € 526,000 $ за объект
коттедж
Удаленность от МКАД:28 КМ
Шоссе:Ильинское
Объектов:4