Выбирайте загородные участки и дома с помощью портала kypitedom.com
/

Таунхаус с 4-мя спальнями 387 м², лот 9774

Продается Таунхаус с 4-мя спальнями, 387 м², лот 9774 уникальное предложение в Подмосковье. С фотографиями, планировками и ценой.
Запишитесь на просмотр.
Показать генплан
Видео о поселке
150,000,000 Р
1,620,000 €
1,858,000 $
Р $
Лот9774
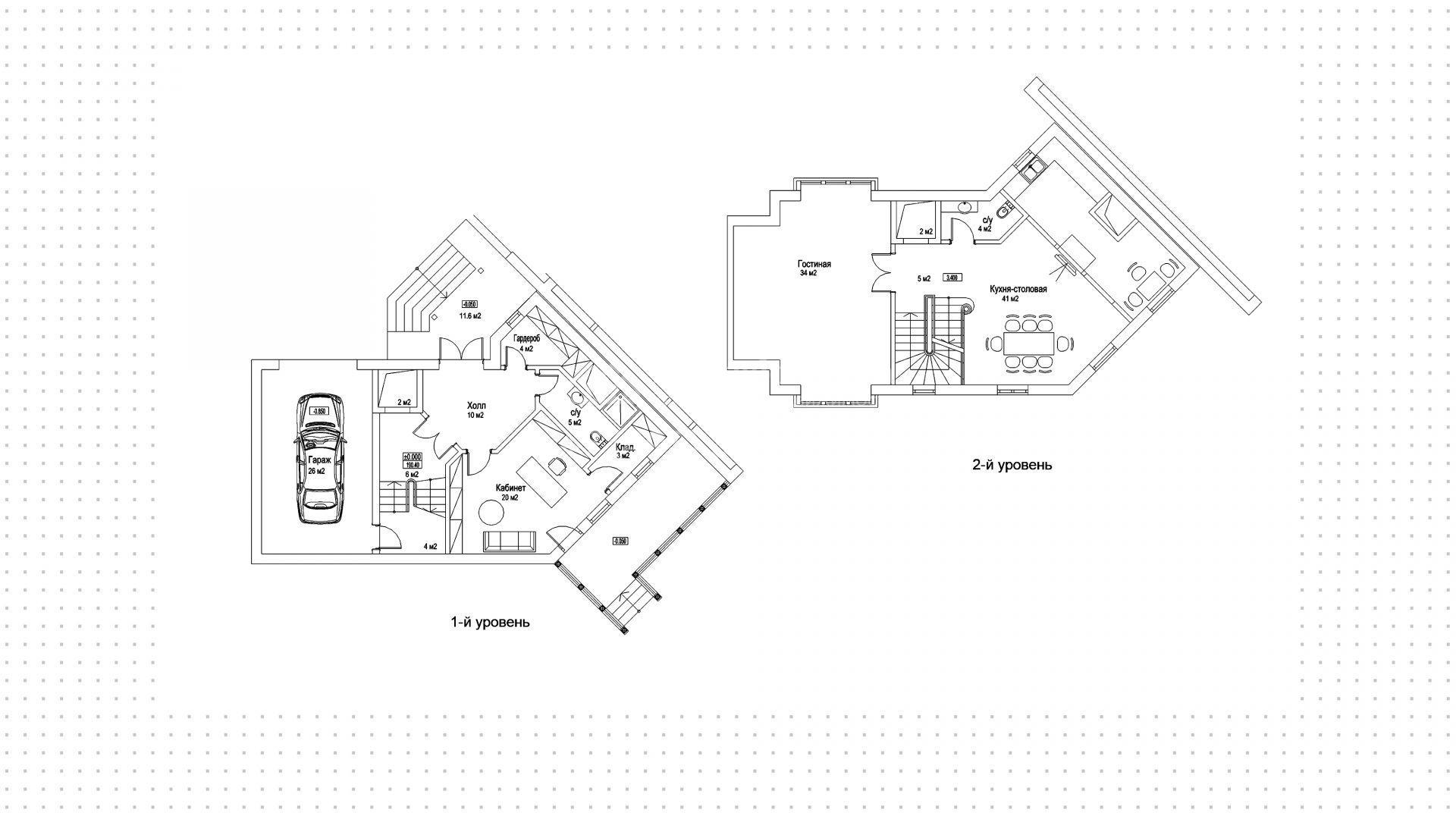
Площадь дома387 м²
Площадь участка 10.9 соток
Этажность4
Спальни4
Удаленность от МКАД12 км
ШоссеМинское
Тип доматаунхаус
Отделкабез отделки

Описание

Таунхаус в старофранцузском стиле площадью 387 м² без отделки расположен в левой части здания с башенкой. Фасад с исторической точностью скопирован с французского курорта «Довиль» на Северо-Западе Франции, украшен рустовкой, изящными декоративными балками в стиле «фахверк», шпилями на крыше и мозаикой. Первый этаж таунхауса занимает гараж и подсобные помещения, второй отведен для кухни и гостиной. Третий и четвертый этажи заняты 4 спальнями хозяев дома. Через все этажи проходит шахта лифта. На участке 10,9 соток посадили газон — можно поставить шезлонги и создать зону отдыха с барбекю.
Скачайте PDF
Презентация таунхауса в посёлке «Довиль»
317.2KB
в pdf
Скачайте полную презентацию лота в один клик
*Время загрузки файла - 4 секунды
Ставка от
9.3%
Первый взнос от
15%
Ежемесячный платёж от
80 463 ₽
Банки
Стоимость недвижимости
Первоначальный взнос
Срок, лет
Просторные резиденции с парком во французском стиле, фитнес-клубом и частным детским садом ...
Читать статью
Резиденции с парком и фонтаном в окружении леса ...
Читать статью
Готовые резиденции с прудом, детскими площадками и зелёным ландшафтом в окружении парков ...
Читать статью
Читать блог
Похожие объекты
Посмотрите соседние посёлки
Голицыно
от 21,000,000 Р 222,000 € 259,000 $ за объект
коттедж
Удаленность от МКАД:30 КМ
Шоссе:Можайское
Объектов:2
Аносино Парк
от 37,000,000 Р 393,000 € 455,000 $ за объект
коттедж
Удаленность от МКАД:27 КМ
Шоссе:Новорижское
Объектов:3
Палицы
от 42,600,000 Р 452,000 € 526,000 $ за объект
коттедж
Удаленность от МКАД:28 КМ
Шоссе:Ильинское
Объектов:4