Выбирайте загородные участки и дома с помощью портала kypitedom.com
/

Дом с 4-мя спальнями 1000 м², лот 11542

Продается Дом с 4-мя спальнями, 1000 м², лот 11542 уникальное предложение в Подмосковье. С фотографиями, планировками и ценой.
Запишитесь на просмотр.
117,000,000 Р
1,288,000 €
1,525,000 $
Р $
Лот11542
Площадь дома1000 м²
Площадь участка 24 сотки
Этажность3
Спальни4
Удаленность от МКАД23 км
ШоссеРублево-Успенское
Тип домакоттедж

Описание

Загородный особняк площадью 1000 м² построен на прилесном участке 24 сотки. Фасад здания с большой площадью остекления и двускатной крышей облицован коричневым клинкером и декорирован вставками из дерева. Коттедж продается в отделке whitebox, осталось лишь провести финишные работы. Благодаря потолкам высотой до 9 метров просторанство наполнено воздухом и светом. Планировка дома включает 4 спальни, гостиную, кухню-столовую, блок SPA, бассейн и летнее патио. На участке с соснами и вымощенной площадкой перед коттеджем расположен гараж с квартирой для персонала с отделкой.

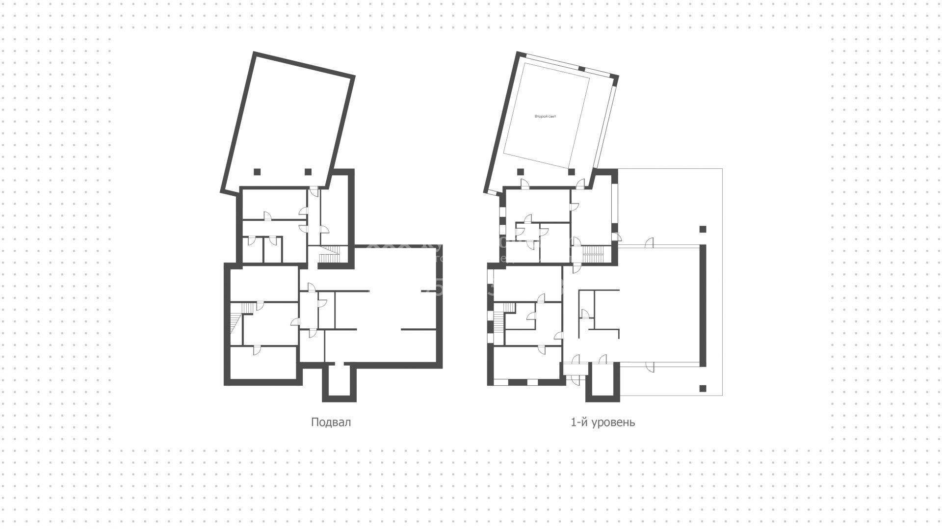
Поэтажное описание

Цоколь: техническое помещение. 1-й уровень: холл, гостиная, столовая-кухня, блок SPA, бассейн, летнее патио, санузел. 2-й уровень: мастер-спальня с санузлом и гардеробной, 3 спальни с санузлами.
Скачайте PDF
Презентация дома в посёлке «Новодарьино РАН»

в pdf
Скачайте полную презентацию лота в один клик
*Время загрузки файла - 4 секунды
Ставка от
9.3%
Первый взнос от
15%
Ежемесячный платёж от
80 463 ₽
Банки
Стоимость недвижимости
Первоначальный взнос
Срок, лет
Просторные резиденции с парком во французском стиле, фитнес-клубом и частным детским садом ...
Читать статью
Резиденции с парком и фонтаном в окружении леса ...
Читать статью
Готовые резиденции с прудом, детскими площадками и зелёным ландшафтом в окружении парков ...
Читать статью
Читать блог
Похожие объекты
Посмотрите соседние посёлки
Лесные зори
от 26,000,000 Р 292,000 € 342,000 $ за объект
коттедж
Удаленность от МКАД:26 КМ
Шоссе:Новорижское
Объектов:31
Новораково
коттедж
Удаленность от МКАД:59 КМ
Шоссе:Новорижское
Объектов:0
Зайцево Парк
от 95,000,000 Р 1,038,000 € 1,209,000 $ за объект
коттедж
Удаленность от МКАД:19 КМ
Шоссе:Минское
Объектов:8