Выбирайте загородные участки и дома с помощью портала kypitedom.com
/

Дом с 4-мя спальнями 307 м², лот 13300

Продается Дом с 4-мя спальнями, 307 м², лот 13300 уникальное предложение в Подмосковье. С фотографиями, планировками и ценой.
Запишитесь на просмотр.
105,000,000 Р
1,159,000 €
1,329,000 $
Р $
Лот13300
Площадь дома307 м²
Площадь участка 7.5 соток
Этажность2
Спальни4
Удаленность от МКАД24 км
ШоссеНоворижское
Тип домакоттедж
Отделкабез отделки

Описание

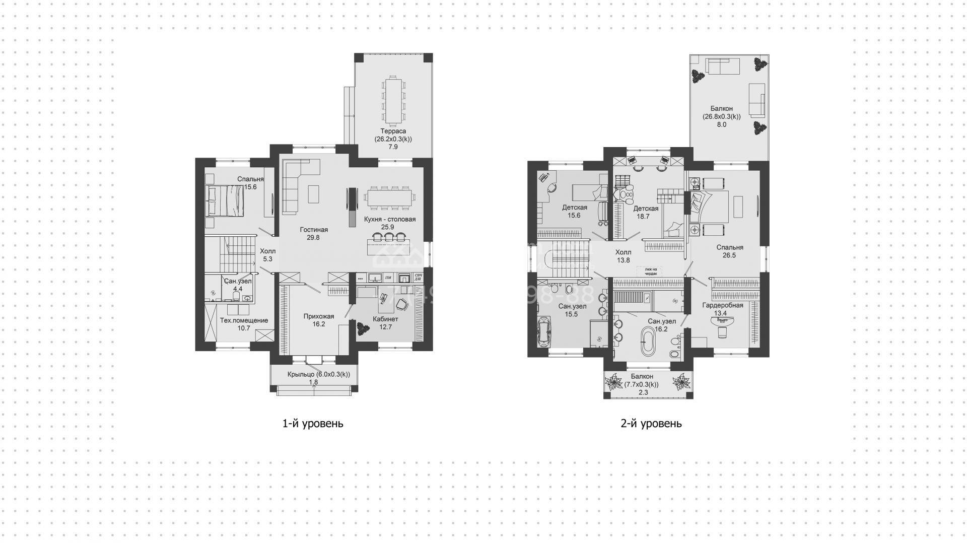
Двухэтажный коттедж площадью 307 м², созданный по проекту «Марсель», сочетает элементы райта и неоклассики. Внешняя отделка выполнена в серо-молочной гамме с использованием премиальных материалов — натурального песчаника, планкена и цементно-песчаной черепицы. Стены возведены из энергоэффективных керамических блоков Porotherm. Высокие потолки в 3,3 метра и широкоформатные окна наполняют дом светом и создают ощущение простора. Свободная планировка позволяет организовать комфортное пространство, включая гостиную, объединённую с кухней-столовой общей площадью 56 м², 4 спальни, кабинет, 2 балкона и террасу. На придомовой территории предусмотрена парковочная площадка на 2 автомобиля. А уютная атмосфера участка достигается благодаря ландшафтному дизайну с зелёными насаждениями и аккуратным газоном. Здесь можно разместить ротанговую мебель и оборудовать несколько приватных зон для отдыха на свежем воздухе.
Скачайте PDF
Презентация дома в посёлке «Millennium Park»
8.1MB
в pdf
Скачайте полную презентацию лота в один клик
*Время загрузки файла - 4 секунды
Ставка от
9.3%
Первый взнос от
15%
Ежемесячный платёж от
80 463 ₽
Банки
Стоимость недвижимости
Первоначальный взнос
Срок, лет
Просторные резиденции с парком во французском стиле, фитнес-клубом и частным детским садом ...
Читать статью
Резиденции с парком и фонтаном в окружении леса ...
Читать статью
Готовые резиденции с прудом, детскими площадками и зелёным ландшафтом в окружении парков ...
Читать статью
Читать блог
Похожие объекты
Посмотрите соседние посёлки
Голицыно
от 21,000,000 Р 222,000 € 259,000 $ за объект
коттедж
Удаленность от МКАД:30 КМ
Шоссе:Можайское
Объектов:2
Аносино Парк
от 37,000,000 Р 393,000 € 455,000 $ за объект
коттедж
Удаленность от МКАД:27 КМ
Шоссе:Новорижское
Объектов:3
Палицы
от 42,600,000 Р 452,000 € 526,000 $ за объект
коттедж
Удаленность от МКАД:28 КМ
Шоссе:Ильинское
Объектов:4