Выбирайте загородные участки и дома с помощью портала kypitedom.com
/

Дом с 4-мя спальнями 150 м², лот 13490

Продается Дом с 4-мя спальнями, 150 м², лот 13490 уникальное предложение в Подмосковье. С фотографиями, планировками и ценой.
Запишитесь на просмотр.
22,000,000 Р
243,000 €
291,000 $
Р $
Лот13490
Площадь дома150 м²
Площадь участка 4.3 сотки
Этажность2
Спальни4
Удаленность от МКАД33 км
ШоссеНоворижское
Тип домакоттедж
Отделкабез отделки

Описание

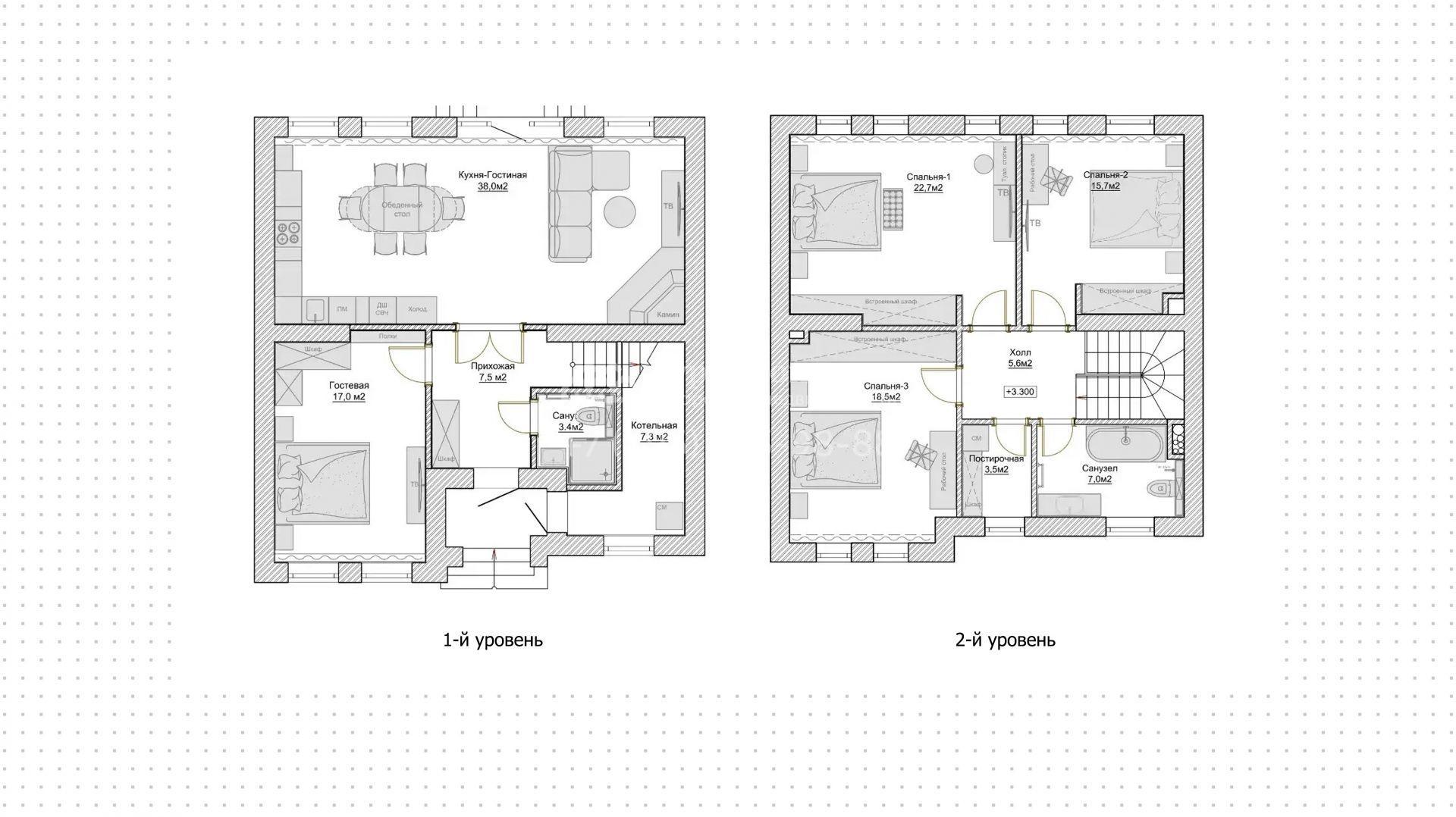
Загородный дом в английском стиле площадью 150 м² на полевом участке 4,3 сотки. Фасад здания облицован красно-коричневым клинкерным кирпичом. Свободная планировка позволяет организовать пространство по собственному усмотрению, есть возможность выбрать готовый дизайн-проект с учетом особенностей планировки. Проектом предусмотрены 4 спальни, кухня-гостиная, 2 санузла, постирочная и котельная. На ухоженном участке можно обустроить уютные места для отдыха с барбекю-зоной.
Скачайте PDF
Презентация дома в посёлке «Британика»

в pdf
Скачайте полную презентацию лота в один клик
*Время загрузки файла - 4 секунды
Ставка от
9.3%
Первый взнос от
15%
Ежемесячный платёж от
80 463 ₽
Банки
Стоимость недвижимости
Первоначальный взнос
Срок, лет
Просторные резиденции с парком во французском стиле, фитнес-клубом и частным детским садом ...
Читать статью
Резиденции с парком и фонтаном в окружении леса ...
Читать статью
Готовые резиденции с прудом, детскими площадками и зелёным ландшафтом в окружении парков ...
Читать статью
Читать блог
Похожие объекты
Посмотрите соседние посёлки
Лесные зори
от 26,000,000 Р 292,000 € 342,000 $ за объект
коттедж
Удаленность от МКАД:26 КМ
Шоссе:Новорижское
Объектов:31
Новораково
коттедж
Удаленность от МКАД:59 КМ
Шоссе:Новорижское
Объектов:0
Зайцево Парк
от 95,000,000 Р 1,038,000 € 1,209,000 $ за объект
коттедж
Удаленность от МКАД:19 КМ
Шоссе:Минское
Объектов:8