Выбирайте загородные участки и дома с помощью портала kypitedom.com
/

Коттедж с пятью спальнями 605 м², лот 14261

Продается Коттедж с пятью спальнями, 605 м², лот 14261 уникальное предложение в Подмосковье. С фотографиями, планировками и ценой.
Запишитесь на просмотр.
750,000,000 Р
8,318,000 €
9,645,000 $
Р $
Лот14261
Площадь дома605 м²
Площадь участка 33 сотки
Этажность3
Спальни5
Удаленность от МКАД2 км
ШоссеСколковское
Тип домакоттедж
Отделка«под ключ»

Описание

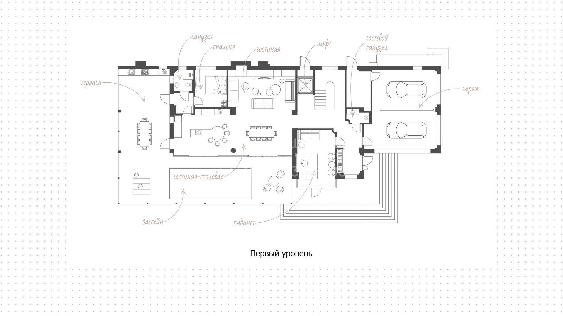
Загородный коттедж площадью 605 м², созданный по проекту архитектора Арсена Хачатряна, расположен на живописном участке 33 сотки с собственным выходом к реке. Монументальный фасад облицован светлым натуральным камнем, а стильная подсветка элегантно подчёркивает его чистые и лаконичные линии. Панорамные окна открывают захватывающие виды на Мещерский лес, стирая границу между великолепной природой и наполненными солнцем интерьерами, выполненными под ключ. Сердцем дома стала зона первого этажа, где разместили просторную кухню-гостиную с камином, столовую для приёма 8-10 гостей, кабинет и гостевую спальню. Второй уровень представляет собой приватную семейную зону, вмещающую мастер-спальню с вместительной гардеробной и три дополнительные спальни. Третий этаж полностью посвящён отдыху — здесь вас ждут современный тренажёрный зал, сауна, хаммам, гостиная для вечеринок и две большие террасы, на одной из которых установили джакузи. Особый комфорт обеспечивают лифт, отдельный блок для персонала и встроенный двухместный гараж. Благоустроенный участок завершает гармоничную картину — здесь засеян аккуратный газон, вымощены дорожки и высажены деревья.
Скачайте PDF
Презентация дома в посёлке «Сколково»

в pdf
Скачайте полную презентацию лота в один клик
*Время загрузки файла - 4 секунды
Ставка от
9.3%
Первый взнос от
15%
Ежемесячный платёж от
80 463 ₽
Банки
Стоимость недвижимости
Первоначальный взнос
Срок, лет
Просторные резиденции с парком во французском стиле, фитнес-клубом и частным детским садом ...
Читать статью
Резиденции с парком и фонтаном в окружении леса ...
Читать статью
Готовые резиденции с прудом, детскими площадками и зелёным ландшафтом в окружении парков ...
Читать статью
Читать блог
Похожие объекты
Посмотрите соседние посёлки
Новораково
коттедж
Удаленность от МКАД:59 КМ
Шоссе:Новорижское
Объектов:0
Зайцево Парк
от 95,000,000 Р 1,038,000 € 1,209,000 $ за объект
коттедж
Удаленность от МКАД:19 КМ
Шоссе:Минское
Объектов:8
Голицыно
от 21,000,000 Р 232,000 € 270,000 $ за объект
коттедж
Удаленность от МКАД:30 КМ
Шоссе:Можайское
Объектов:2