Выбирайте загородные участки и дома с помощью портала kypitedom.com
/

Резиденция с банным комплексом 2350 м², лот 10722

Продается Резиденция с банным комплексом, 2350 м², лот 10722 уникальное предложение в Подмосковье. С фотографиями, планировками и ценой.
Запишитесь на просмотр.
520,000,000 Р
5,498,000 €
6,421,000 $
Р $
Лот10722
Площадь дома2350 м²
Площадь участка 130 соток
Этажность4
Спальни7
Удаленность от МКАД19 км
ШоссеРублево-Успенское
Тип домакоттедж
Отделкабез отделки

Описание

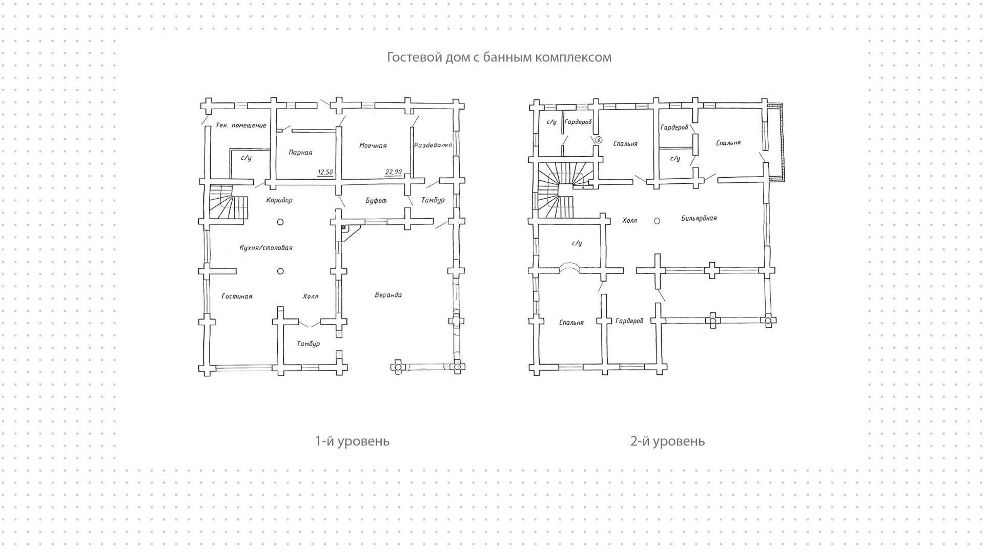
Просторная резиденция в классическом стиле площадью 2350 м² расположена на участке 130 соток с выходом к Москве-реке. На первом этаже особняка спланировали кинозал и спа-центр с бассейном, тренажерным залом и косметическим кабинетом. На второй этаж можно подняться на лифте, где разместили 7 спальных блоков с персональными гостиными и санузлами. На территории построен отдельный двухэтажный дом для персонала площадью 330 м² с гаражом на 4 машины, а также деревянный гостевой дом с банным комплексом площадью 495 м². На участке выполнен ландшафтный дизайн, высажены плодовые и хвойные деревья, залита площадка под футбольное поле.
Скачайте PDF
Презентация дома в посёлке «Новобузаево»

в pdf
Скачайте полную презентацию лота в один клик
*Время загрузки файла - 4 секунды
Ставка от
9.3%
Первый взнос от
15%
Ежемесячный платёж от
80 463 ₽
Банки
Стоимость недвижимости
Первоначальный взнос
Срок, лет
Просторные резиденции с парком во французском стиле, фитнес-клубом и частным детским садом ...
Читать статью
Резиденции с парком и фонтаном в окружении леса ...
Читать статью
Готовые резиденции с прудом, детскими площадками и зелёным ландшафтом в окружении парков ...
Читать статью
Читать блог
Похожие объекты
Посмотрите соседние посёлки
Чигасово-2
коттедж
Удаленность от МКАД:41 КМ
Шоссе:Рублево-Успенское
Объектов:0
Чистые пруды
от 48,000,000 Р 521,000 € 607,000 $ за объект
таунхаус
коттедж
Удаленность от МКАД:20 КМ
Шоссе:Минское
Объектов:1
Жуковка-2
от 142,500,000 Р 1,527,000 € 1,770,000 $ за объект
коттедж
Удаленность от МКАД:9 КМ
Шоссе:Рублево-Успенское
Объектов:2