Выбирайте загородные участки и дома с помощью портала kypitedom.com
/

Современный дом с четырьмя спальнями 511 м², лот 14264

Продается Современный дом с четырьмя спальнями, 511 м², лот 14264 уникальное предложение в Подмосковье. С фотографиями, планировками и ценой.
Запишитесь на просмотр.
650,000,000 Р
7,176,000 €
8,482,000 $
Р $
Лот14264
Площадь дома511 м²
Площадь участка 21 сотка
Этажность2
Спальни4
Удаленность от МКАД14 км
ШоссеРублево-Успенское
Тип домакоттедж
Отделка«под ключ»

Описание

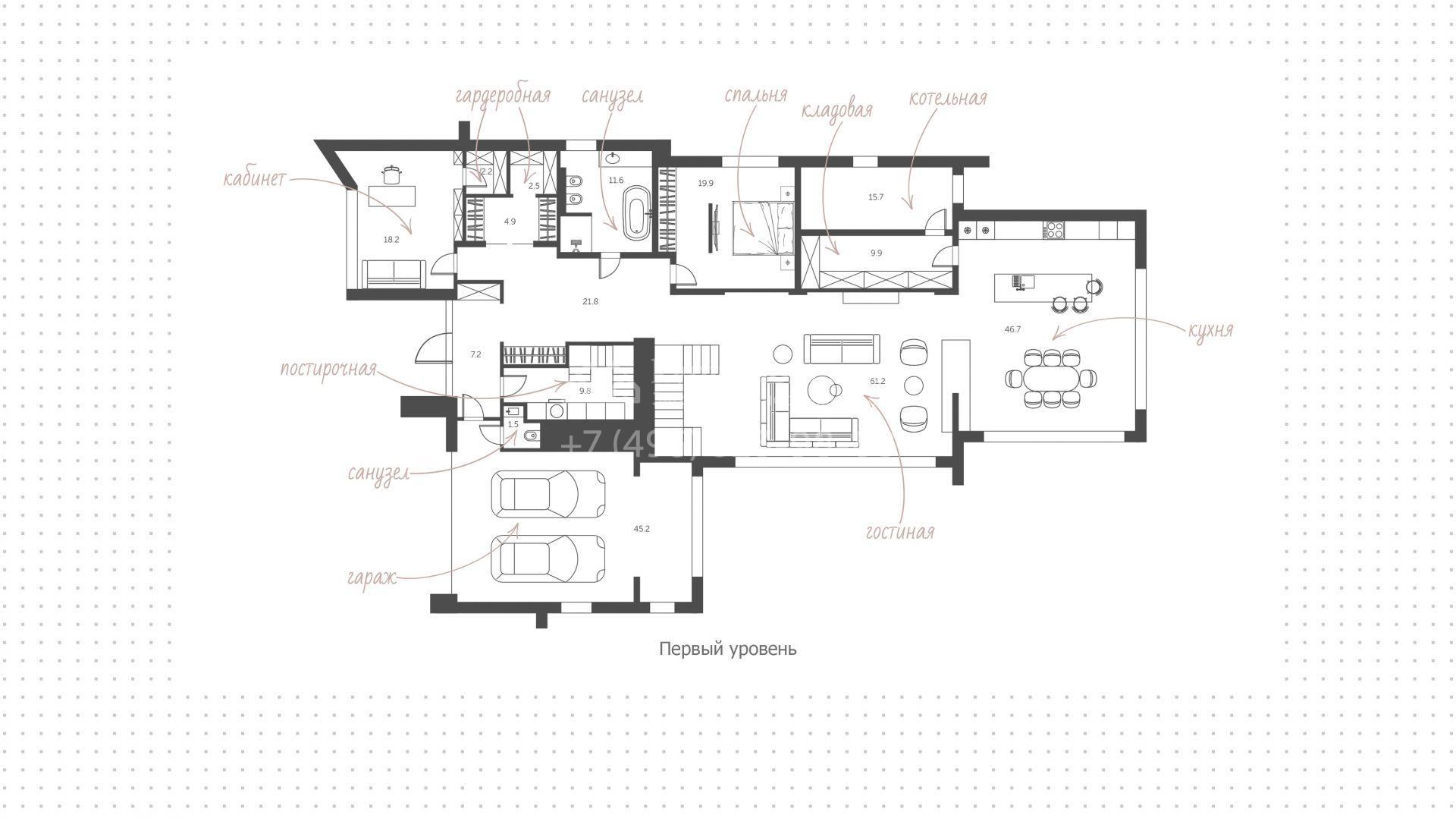
Загородный коттедж площадью 511 м² построен на участке 21 сотка в окружении живописного леса. Современный фасад облицован натуральным гранитом и термодеревом, а архитектурная подсветка эффектно подчёркивает строгие линии здания в вечернее время. Благодаря расположению на самой высокой точке посёлка, панорамные окна Schuco открывают захватывающие виды на природу, одновременно с этим наполняя внутренние пространства солнечными лучами. Элегатные интерьеры отделаны с использованием высококачественных материалов: на первом уровне уложен керамогранит с тройной текстурой, а в спальнях — паркет Coswick Mosaic. Дом полностью укомплектован стильной мебелью, встроенной бытовой техникой и сантехникой Villeroy&Boch. Для идеального микроклимата и удобства управления установлены климатическая система скрытого монтажа Daikin с приточно-вытяжной вентиляцией и кондиционированием, подогрев полов и «умный дом». Планировка первого этажа включает просторную двухсветную гостиную с камином, кухню-столовую с выходом на крытую террасу для барбекю, кабинет и гостевую спальню. На втором этаже разместили приватную зону отдыха с тремя спальнями с собственными гардеробными, а также квартиру для персонала с отдельным входом. Оставить машину можно во встроенном двухместном гараже с воротами Hormann. На участке выполнен продуманный ландшафтный дизайн со свежескошенным газоном, аккуратными подогреваемыми дорожками, декоративными кустарниками и уличным освещением.
Скачайте PDF
Презентация дома в посёлке «Малое Сареево»
9.6MB
в pdf
Скачайте полную презентацию лота в один клик
*Время загрузки файла - 4 секунды
Ставка от
9.3%
Первый взнос от
15%
Ежемесячный платёж от
80 463 ₽
Банки
Стоимость недвижимости
Первоначальный взнос
Срок, лет
Просторные резиденции с парком во французском стиле, фитнес-клубом и частным детским садом ...
Читать статью
Резиденции с парком и фонтаном в окружении леса ...
Читать статью
Готовые резиденции с прудом, детскими площадками и зелёным ландшафтом в окружении парков ...
Читать статью
Читать блог
Похожие объекты
Посмотрите соседние посёлки
Лесные зори
от 26,000,000 Р 292,000 € 342,000 $ за объект
коттедж
Удаленность от МКАД:26 КМ
Шоссе:Новорижское
Объектов:31
Новораково
коттедж
Удаленность от МКАД:59 КМ
Шоссе:Новорижское
Объектов:0
Зайцево Парк
от 95,000,000 Р 1,038,000 € 1,209,000 $ за объект
коттедж
Удаленность от МКАД:19 КМ
Шоссе:Минское
Объектов:8